Single house for sale - 6936 Cademario
Why you'll love this property
Stunning lake and mountain views
Modern open-space kitchen
Cozy living room with fireplace
Arrange a visit
Book a visit today!
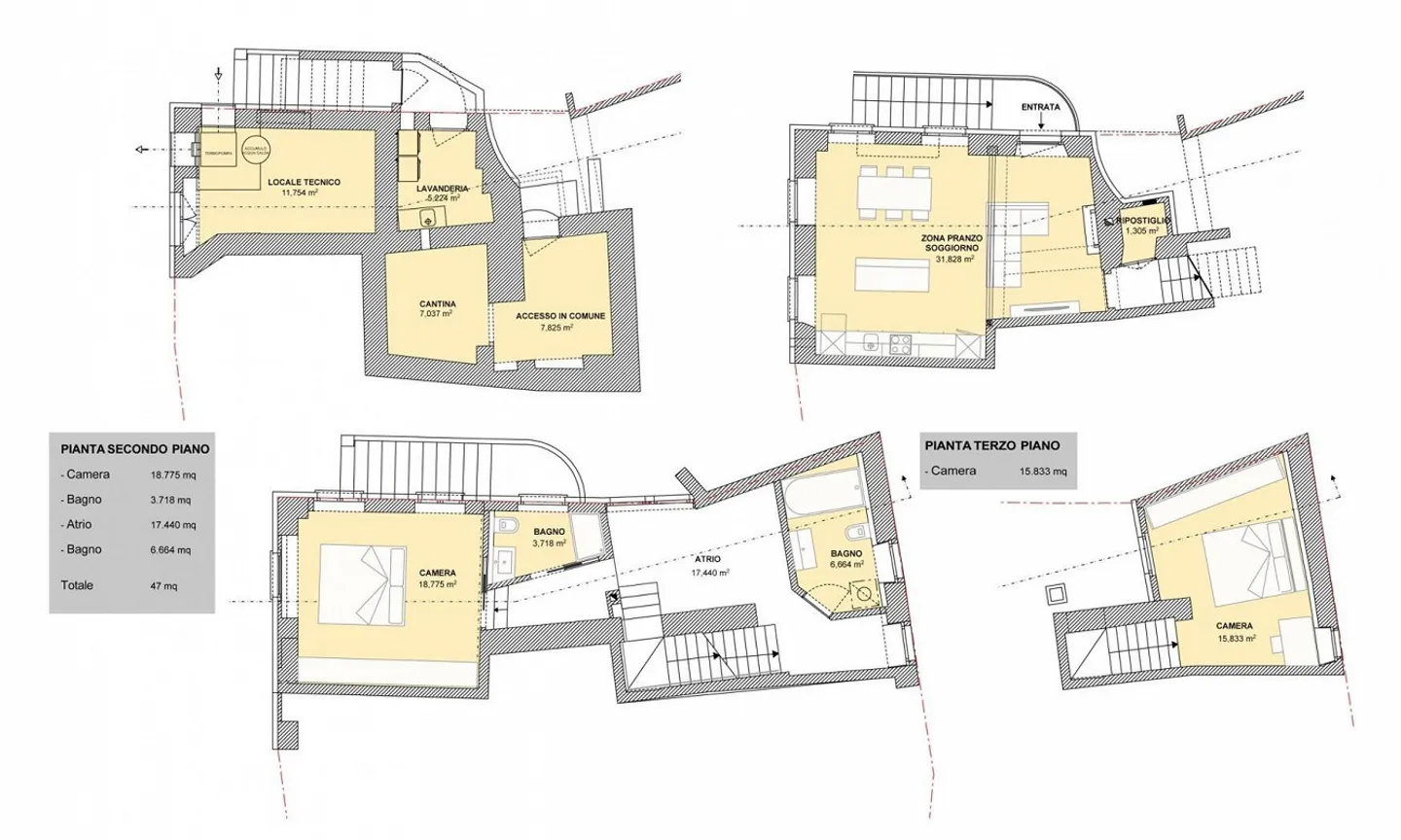
BEAUTIFUL 4.5 ROOM HOUSE RENOVATED WITH LAKE VIEW IN CADEMARIO
In the charming heart of the Cademario nucleus, immersed in a frame of light, stands this lovely 4.5 room house of about 130 square meters gross, including technical rooms, completely renovated in 2017 with great attention to detail.
A perfect residence for those who wish to live in a very bright and sunny environment, with a breathtaking panoramic view of the lake and the mountains that offers unique emotions every day.
The property is currently rented and available in about 2 months upon request...
Property details
- Available from
- By agreement
- Rooms
- 4.5
- Construction year
- 1900
- Living surface
- 100 m²



