Single house for sale - 6927 Agra
Why you'll love this property
Customizable interior finishes
Spacious garden with terraces
Modern heating and cooling system
Arrange a visit
Book a visit with Stabile today!
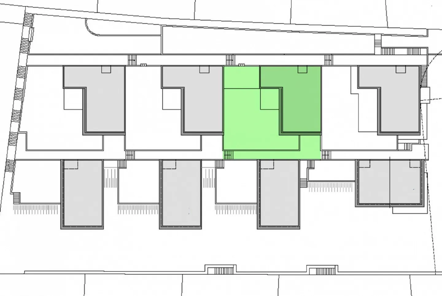
Modern Villa 5.5 with Garden and View of Collina d'Oro
Beautiful 5.5-room villa of 240 m², with a large hobby room, in a residential area with 9 modern and fully independent apartments built in 2017.
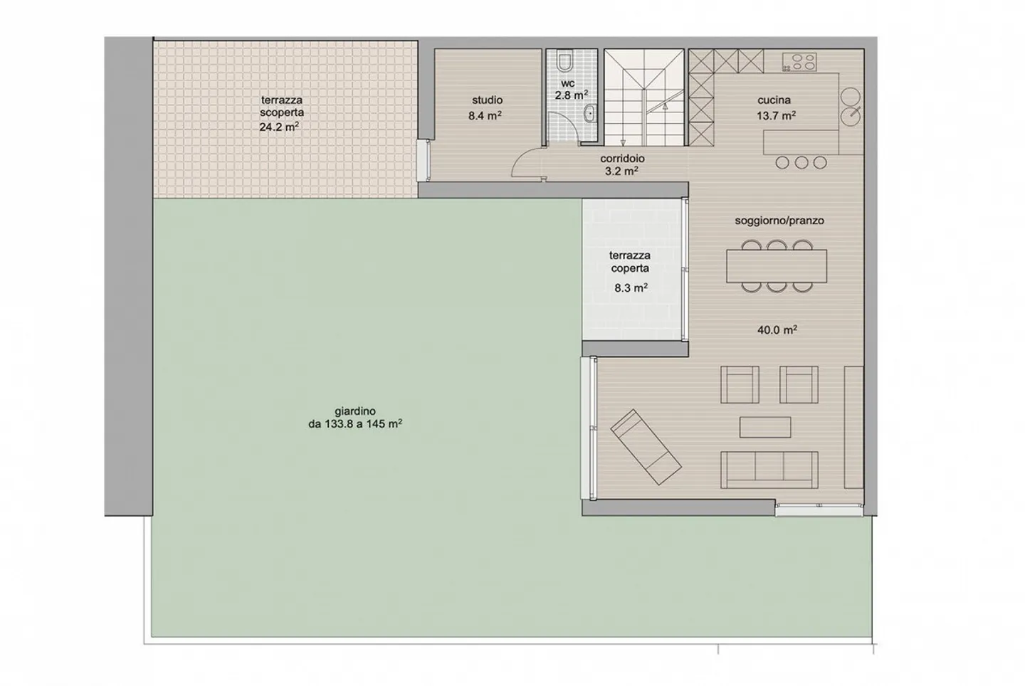
The property is currently presented in raw condition inside, the sale price includes a kitchen worth about 25,000 CHF of the customer's choice, with the possibility of adding a modern fireplace in the living room, and the selection of bathroom and flooring finishes.
On the GROUND FLOOR there is a living area of 40 m² + 13 m² open kitchen, with access to...
Property details
- Available from
- By agreement
- Rooms
- 5.5
- Construction year
- 2017
- Living surface
- 240 m²
- Usable surface
- 240 m²



