Single house for sale - 6875 Casima
Why you'll love this property
Surrounded by serene nature
Modern kitchen with quality appliances
Cozy living room with fireplace
Arrange a visit
Book a visit with Stabile today!
Apartment with 4.5 rooms in the green in Castel San Pietro
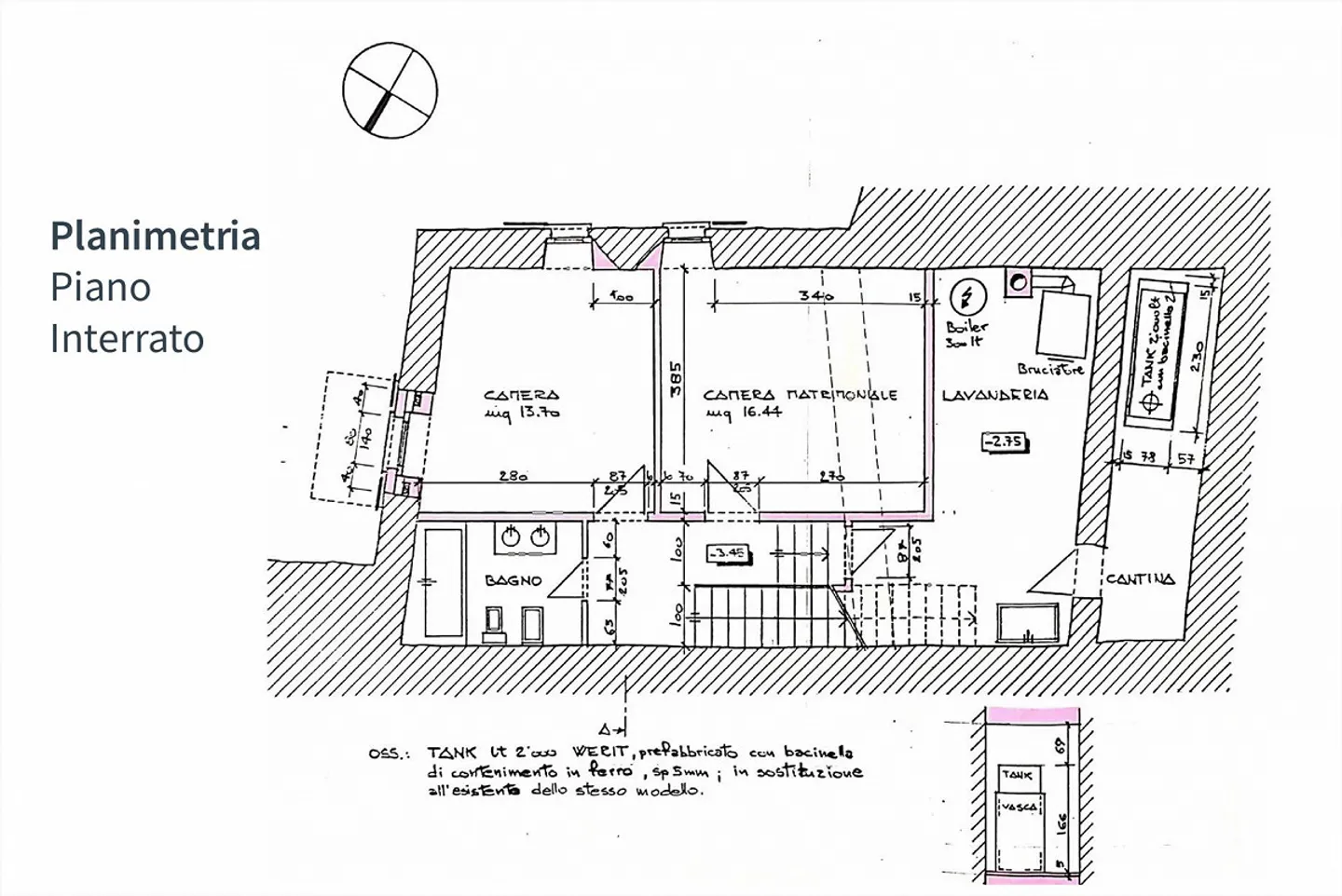
We offer for sale a beautiful single-family house with 4.5 rooms and about 190 m² of living space, built in 1989 and recently renovated, in very good condition. The property is located in Casima, in the municipality of Castel San Pietro, in a picturesque hilly area surrounded by nature and tranquility, just six kilometers from the center of Castel San Pietro, where all the main services such as schools, post office, and bars are located, and about 20 minutes from Mendrisio. An ideal solution for...
Property details
- Available from
- 20.08.2025
- Rooms
- 4.5
- Construction year
- 1989
- Living surface
- 190 m²
- Usable surface
- 190 m²



