Single house for sale - 6862 Rancate
Why you'll love this property
Flexible dual entrances
Spacious garden area
Creative renovation potential
Arrange a visit
Book a visit with Capifid today!
RANCATE – SINGLE-FAMILY HOUSE TO RENOVATE – OPTIMAL INVESTMENT!
An extraordinary investment opportunity in Rancate!
WHERE? In a strategic location in the district of Mendrisio, close to the main services. Located in a quiet and sunny area, it offers a pleasant environment and access to daily needs.
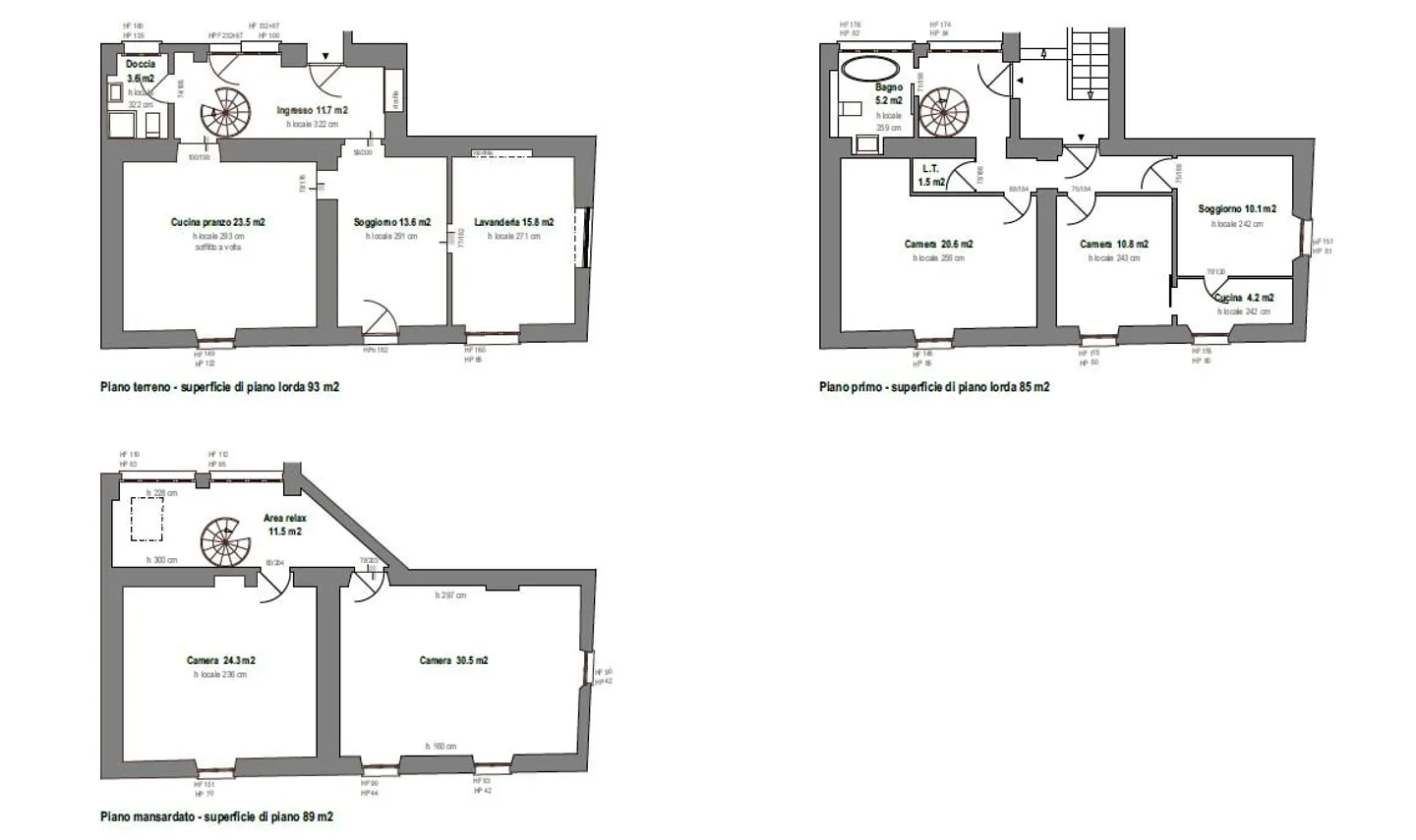
WHAT? SINGLE-FAMILY HOUSE WITH 6.5 ROOMS, spanning three levels and offering large spaces as well as various possibilities for personalization. With an area of 267 m² inside, you will find five bedrooms, two bathrooms, a kitchen with dining room, a spacious living r...
Property details
- Available from
- 20.09.2022
- Rooms
- 5
- Living surface
- 267 m²
- Usable surface
- 267 m²



