Single house for sale - 6763 Osco
Why you'll love this property
Stunning mountain views
Private garden space
Open-plan living area
Arrange a visit
Book a visit today!
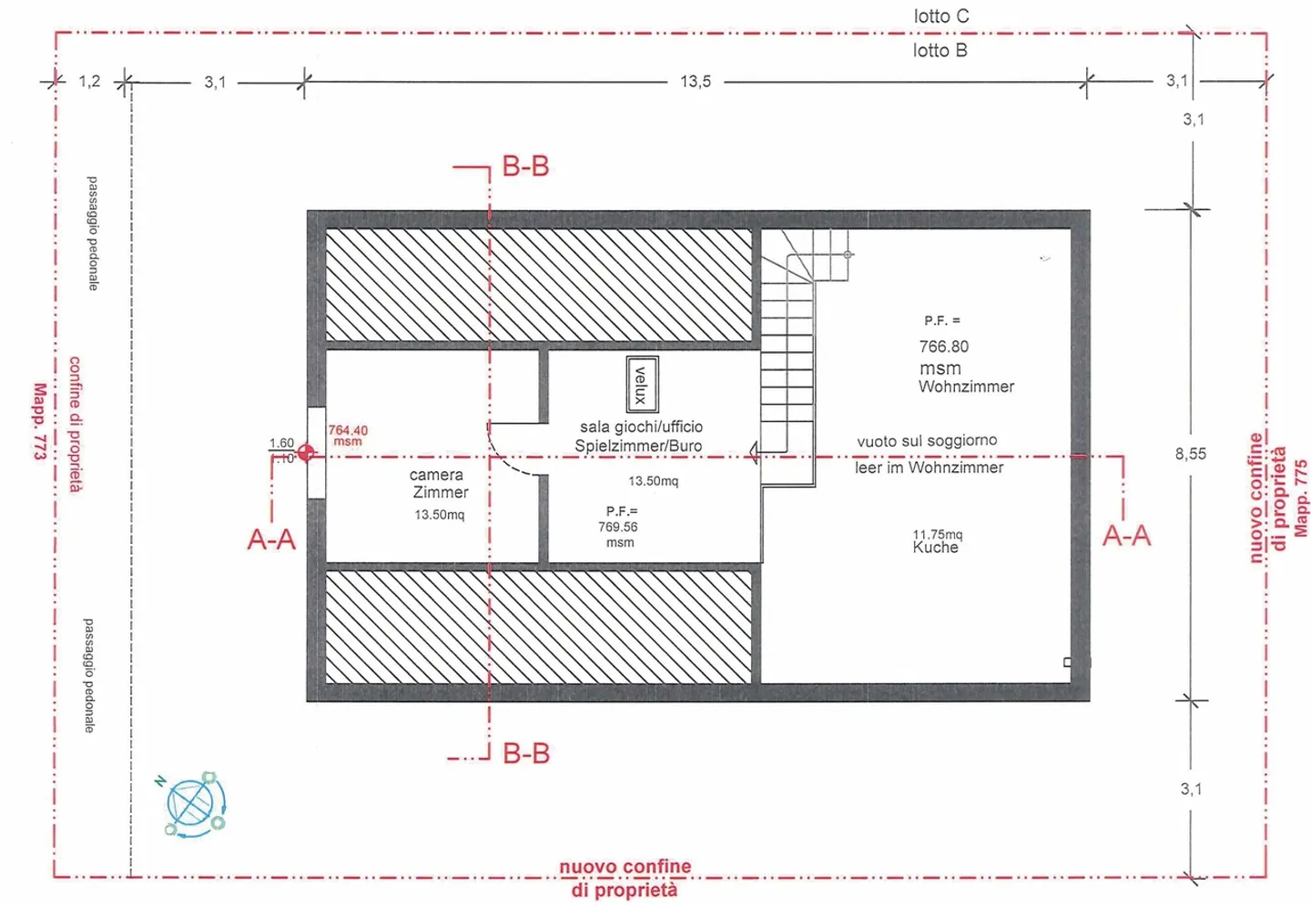
NEW CONSTRUCTION IN FAIDO – 4.5-ROOM SINGLE-FAMILY HOUSE WITH GARDEN AND MOUNTAIN VIEW
Within a new real estate operation consisting of only three residential units, we offer for sale an independent single-family house, with delivery expected by the end of 2025.
Each residence will have external parking spaces and a distance of over 6 meters between properties will be guaranteed, ensuring privacy and quality of living.
The property, (LOT A) immersed in greenery and with excellent solar exposure, offers a splendid open view of the mountain, and is perfect for families or as a valuabl...
Property details
- Available from
- By agreement
- Rooms
- 4.5
- Construction year
- 2025
- Living surface
- 142 m²
- Land surface
- 350 m²



