Single house for sale - 6710 Biasca
Why you'll love this property
Historic center location
Spacious attic and cellar
Customizable living spaces
Arrange a visit
Book a visit with Stabile today!
House in the Center of Biasca for Renovation
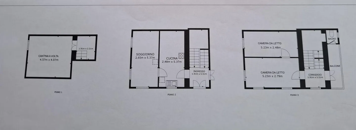
In the picturesque historic center of Biasca, just a few steps from all essential services and amenities, we offer a characteristic Ticino house for sale that needs complete renovation. It is ideal for those who want to realize a customized living project.
The property extends over approximately 200 m², distributed over three levels, as well as a spacious attic and a practical basement, totaling 7.5 rooms. The generous spaces and typical structure offer many opportunities for personalization.
Ro...
Property details
- Available from
- 06.03.2026
- Rooms
- 4.5
- Construction year
- 1900
- Living surface
- 165 m²
- Usable surface
- 165 m²
- Land surface
- 107 m²
- Building volume
- 668 m³



