Villa for sale - 6500 Bellinzona
Why you'll love this property
Large private garden oasis
Modern energy-efficient design
Historic site near Bellinzona
Arrange a visit
Book a visit with Coco today!
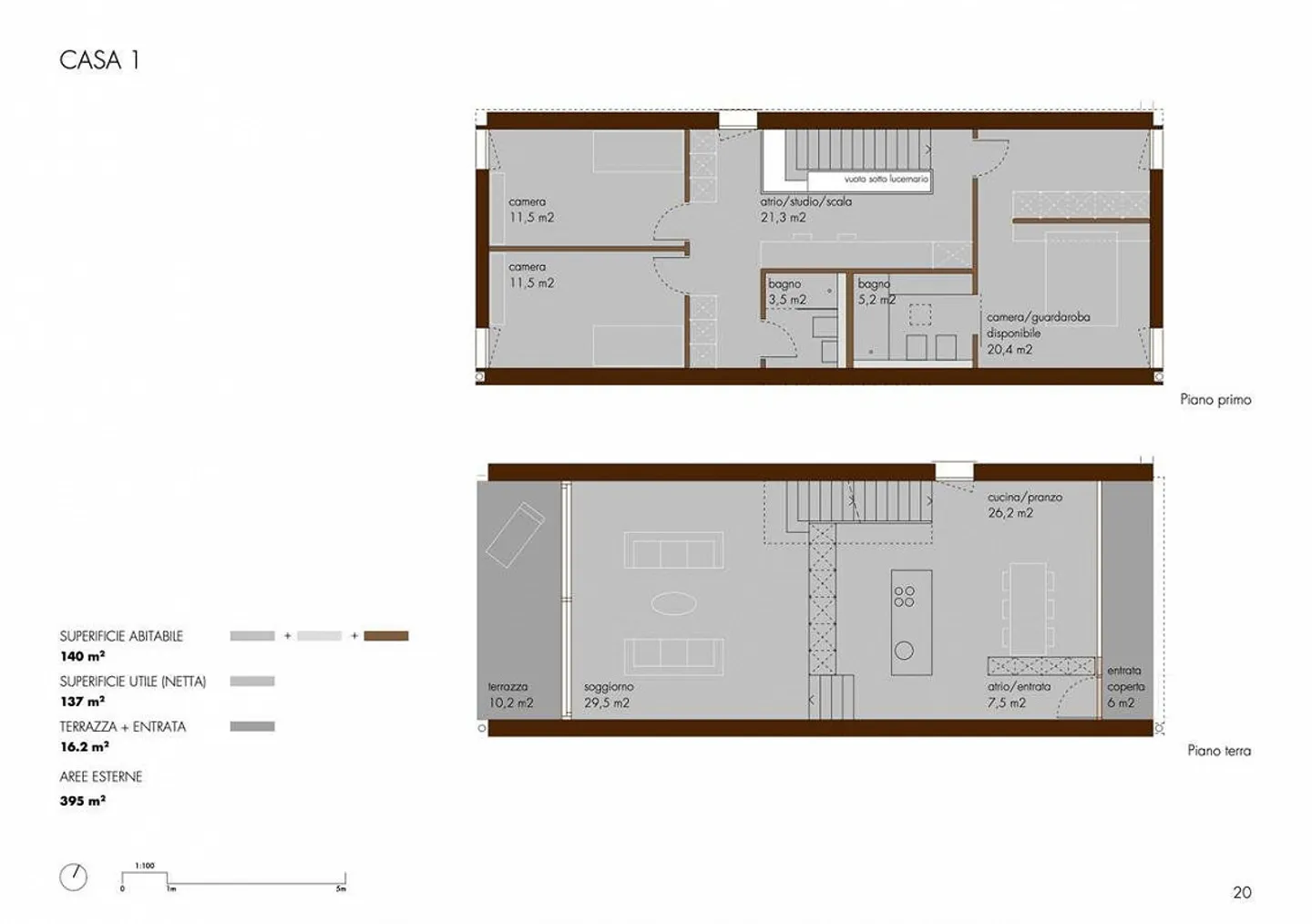
Gnosca - spacious house with large garden
We present to you this charming house with 4.5 rooms, which was created with the desire to appreciate the beauty of the territory and enrich family life.
The modern single-family house extends over 2 levels, a basement and an upper floor with a large private garden.
The property is located next to the famous monument of San Giovanni, one of the historical and cultural assets that testify to a rich historical territory.
The exclusive residence, named Cortile San Giovanni, has as its project slog...
Property details
- Available from
- By agreement
- Rooms
- 4.5
- Construction year
- 2025
- Living surface
- 200 m²
- Land surface
- 200 m²




