Villa for sale - Route De Domdidier 27, 1566 St-Aubin FR
Why you'll love this property
Spacious living area 64 m²
Modern open kitchen design
Energy-efficient features
Arrange a visit
Book a visit with Maxime today!
Single villa with 5 rooms, new
Located in Saint-Aubin (FR) near shops, this new project consists of 6 new single-family homes. Each house offers spacious rooms, high-quality finishes, and modern amenities (finishes according to the buyers' wishes).
Key features of this project: Underfloor heating with ground source heat pump, photovoltaic panels, motorized shutters, fiber optic, room thermostat, etc...
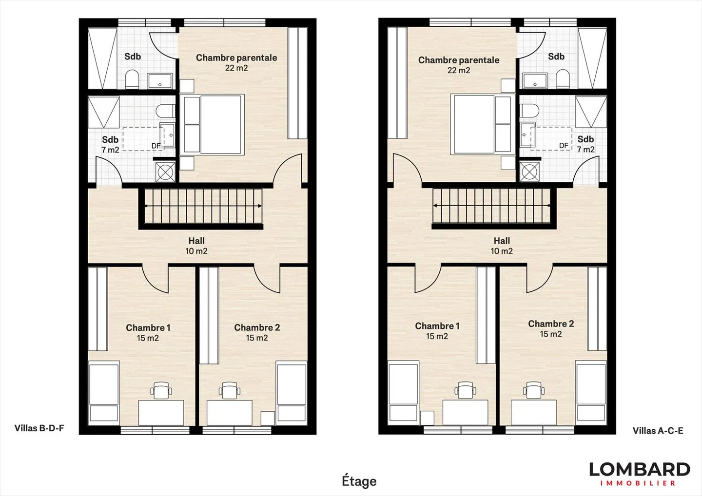
Villa A consists of:
Ground floor:
* Entrance hall with built-in wardrobes
* Spacious living/dining room of 64 m2
* Open kitchen wi...
Property details
- Available from
- By agreement
- Rooms
- 5
- Construction year
- 2025
- Living surface
- 140 m²
- Usable surface
- 214 m²
- Land surface
- 352 m²




