Stepped house for sale - Pergolastrasse 26e, 3185 Schmitten FR
Why you'll love this property
Bright living room with garden
Private garden with pergola
Stylish open gallery space
Arrange a visit
Book a visit with Schaad today!
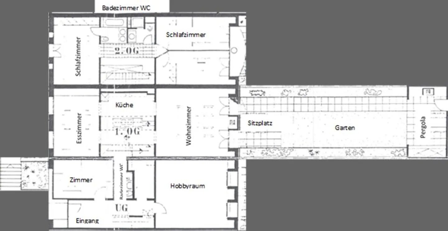
Modern 6-room terraced house with charm in Schmitten FR
The 6-room terraced single-family house, designed with the involvement of the architect Martin Wagner based in Carona (Ticino), combines what it takes to convey excitement and security, harmony and uniqueness at the same time. The brightness reaching deep into the house is impressive.
It is located at Pergolastrasse 26 e, 3185 Schmitten in the terraced residential complex "Castel Schmitten", on the eastern side, overlooking the Bernese Alps and with a protective pergola for relaxation and lingeri...
Property details
- Available from
- By agreement
- Rooms
- 6
- Construction year
- 1989
- Renovation year
- 2024
- Living surface
- 175 m²



