Single house for sale - 1987 Hérémence
Why you'll love this property
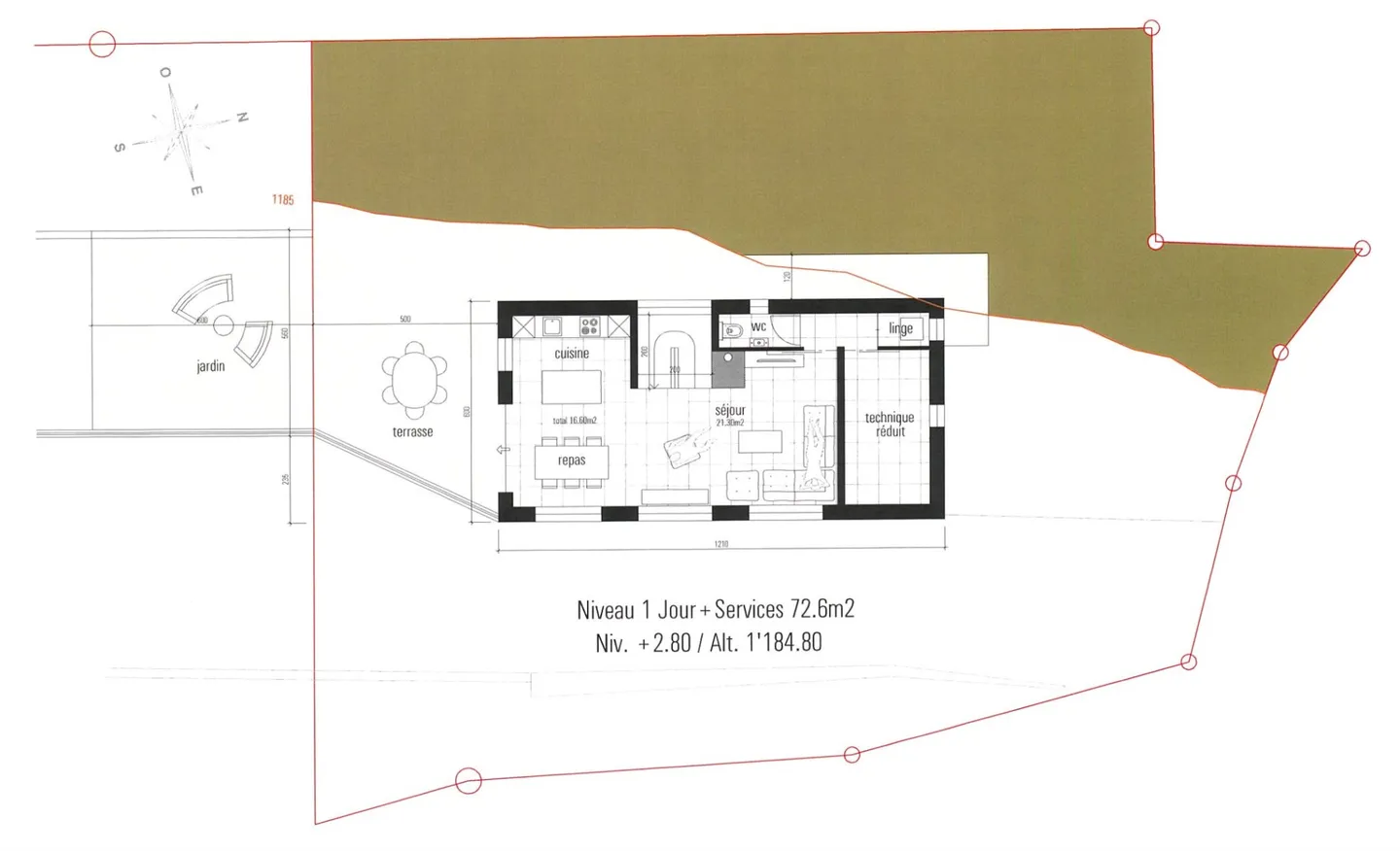
Spacious 30 m² terrace
Beautiful 30 m² garden
Optimal morning sunlight
Arrange a visit
Book a visit today!
Magnificent Villa 4.5 pcs for SALE
Discover this magnificent individual villa located in Hérémence, offered by Claire Immobilier as a primary residence only. No PPE, you own the house and the land.
With its 160 m2, this individual villa with 4.5 rooms offers a spacious living area with 3 bedrooms and 3 bathrooms. You can enjoy a 30 m2 terrace as well as a beautiful 30 m2 garden. The land is 471 m2.
Covered outdoor parking spaces: 2
The "La Dent d'Hérens" promotion in Hérémence is a true gem that offers future buyers an exceptiona...
Property details
- Available from
- By agreement
- Rooms
- 4.5
- Construction year
- 2023
- Living surface
- 160 m²
- Usable surface
- 211 m²
- Land surface
- 500 m²




