Row house for sale - Chemin De Remontet 18, 1536 Combremont-le-Petit
Why you'll love this property
Exclusive green surroundings
Customizable interiors
Spacious attic options
Arrange a visit
Book a visit with Synergimmo today!
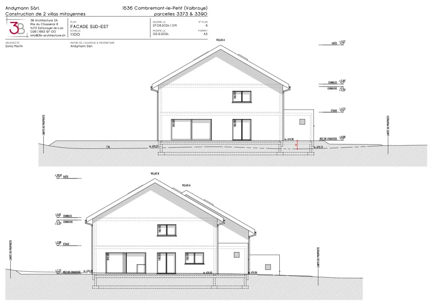
New villa on plan in a green space
Architect-designed semi-detached villa with 4.5 or 5.5 rooms and an exclusive plot of 425 m2 in Combremont-le-Petit.
THE ADVANTAGES AT A GLANCE
- Architect-designed villa
- Traditional construction
- Custom interiors
- Rural and natural setting
- Unobstructed view
- 32m2 additional living space optional...
LOCATION
The charming village of Combremont in the Broye district is located in the canton of Fribourg with immediate proximity to Estavayer-le-Lac and Payerne:
THE VILLA
The model presented (villa A) offers great...
Property details
- Available from
- By agreement
- Rooms
- 5.5
- Construction year
- 2027
- Living surface
- 132 m²
- Usable surface
- 215 m²
- Land surface
- 442 m²




