Villa for sale - 1783 Barberêche
Why you'll love this property
Peaceful garden with jacuzzi
Separate rental apartment
Stunning views and sunlit rooms
Arrange a visit
Book a visit with Firas today!
Villa with 7 ½ rooms in idyllic surroundings in 1783 barberêche
Absolute tranquility just 5 minutes from Freiburg!
Nestled in a green environment, this spacious villa combines harmony, functionality, and well-being. It offers a peaceful living environment in close proximity to Lake Schiffenen and will delight families and couples looking for comfort, nature, and tranquility.
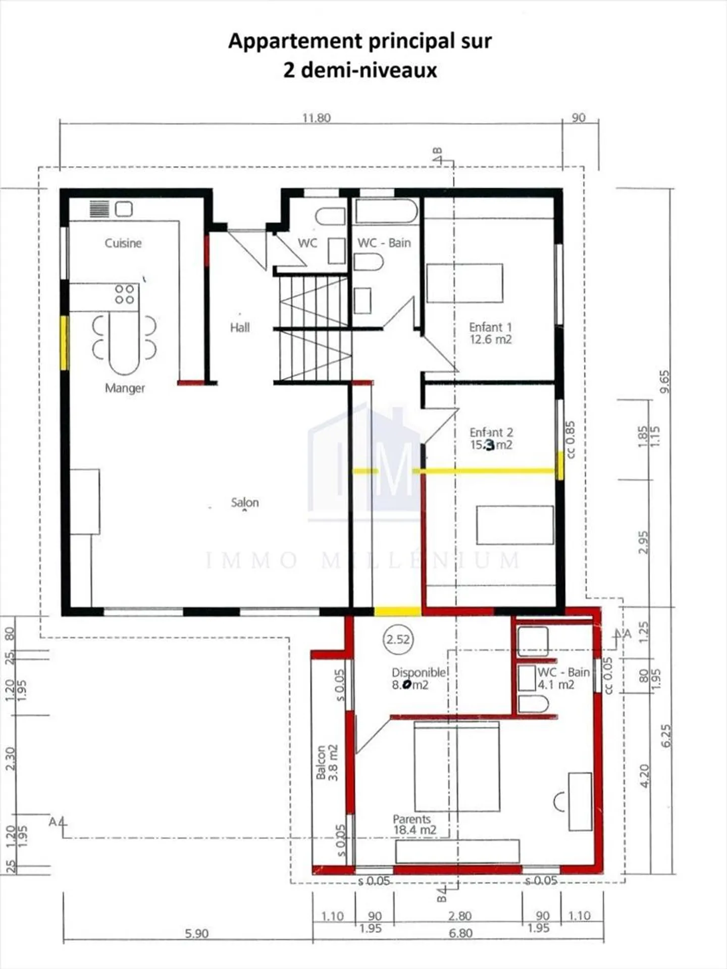
Renovated between 2020 and 2023, this house has a living area of approximately 210 m² on a beautiful plot of 1,007 m².
It enjoys a dominant location with unobstructed views, without any ...
Property details
- Available from
- By agreement
- Rooms
- 7.5
- Construction year
- 1974
- Renovation year
- 2020
- Living surface
- 209 m²
- Usable surface
- 273 m²
- Land surface
- 1007 m²
- Building volume
- 1147 m³



