Single house for sale - Fischerstrasse 17, 8132 Egg b. Zürich
Why you'll love this property
Modern architecture blend
Idyllic hiking trails nearby
Private and peaceful setting
Arrange a visit
Book a visit with Immobilien-Dienstleistungen today!
Architectural dream in harmony with nature
On behalf of our client, we are selling a detached 6½-room single-family house, nestled in a charming residential area and directly adjacent to the idyllic agricultural zone as well as the picturesque hiking trail of Pfannenstiel. This extraordinary property combines modern architecture with traditional influences, creating a unique living experience. Enjoy not only a beautiful view but also a wealth of privacy and tranquility.
Sales guide price: CHF 3,700,000.--
Have we piqued your interest? We...
Property details
- Available from
- By agreement
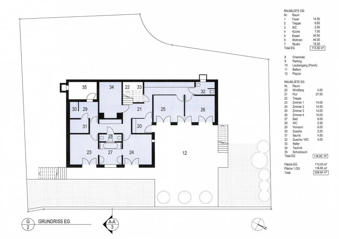
- Rooms
- 6.5
- Construction year
- 1995
- Living surface
- 229 m²
- Land surface
- 704 m²
- Building volume
- 1020 m³



