Single house for sale - Mühlemattstrasse 12, 8135 Langnau am Albis
Why you'll love this property
Unique architectural character
Spacious terrace with views
Large garden for creativity
Arrange a visit
Book a visit with Corina today!
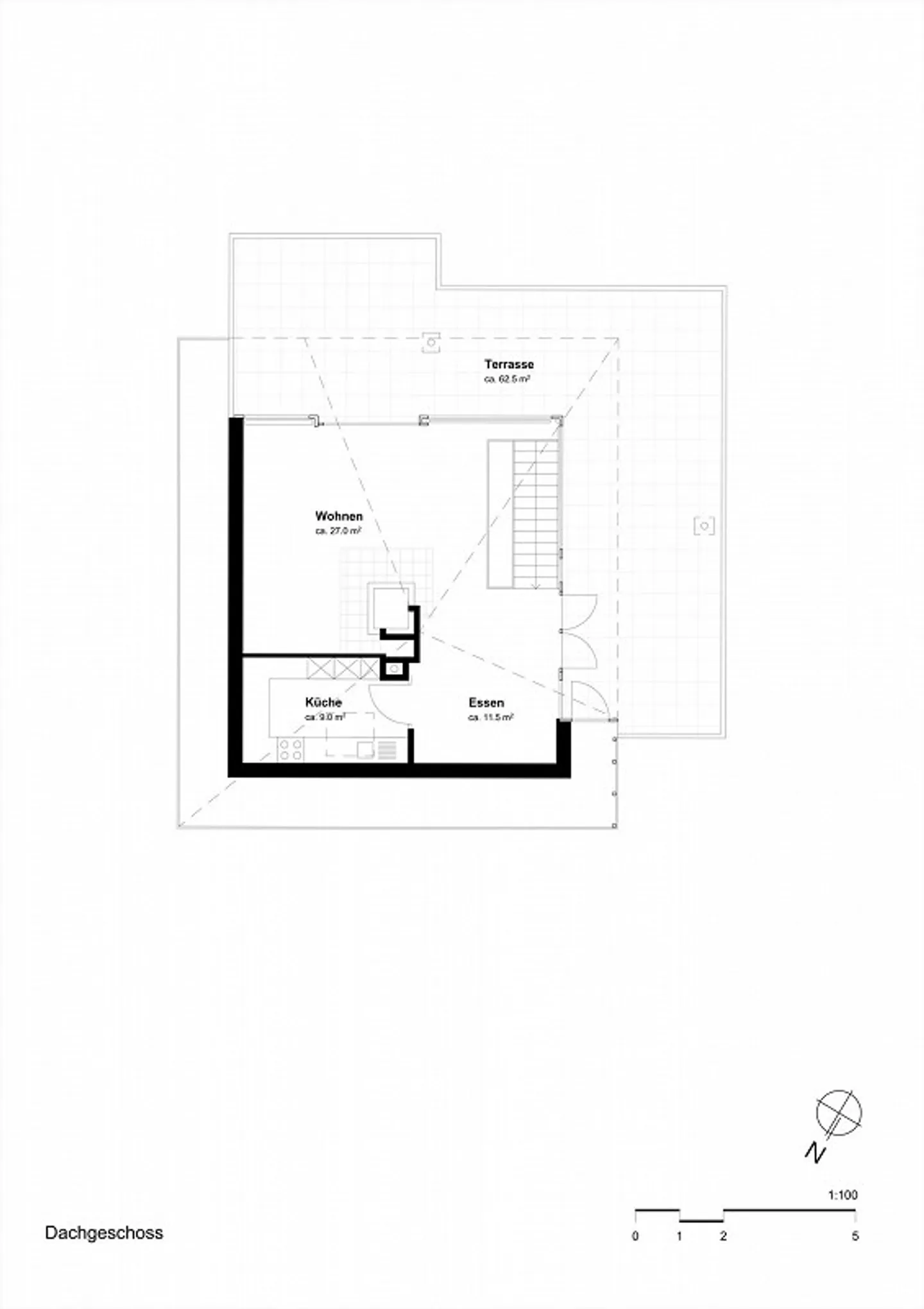
Single-family house with potential – ideal for complete renovation or new construction
This detached single-family house is located in a quiet area and offers a rare combination of architectural character, generous surroundings, and inspiring development potential. Nestled in plenty of greenery and surrounded by trees, you enjoy privacy, tranquility – and a beautiful panoramic view.
The house impresses with its distinctive aura. The brick walls in the interior give the living space a warm, natural atmosphere, while the fireplace in the living room provides coziness on cooler days. ...
Property details
- Available from
- By agreement
- Rooms
- 6
- Construction year
- 1972
- Land surface
- 962 m²



