Restaurant for sale - 6672 Gordevio
Why you'll love this property
Scenic terrace with grill
Cozy bar and fireplace
Private parking for 12 cars
Arrange a visit
Book a visit with Steiger today!
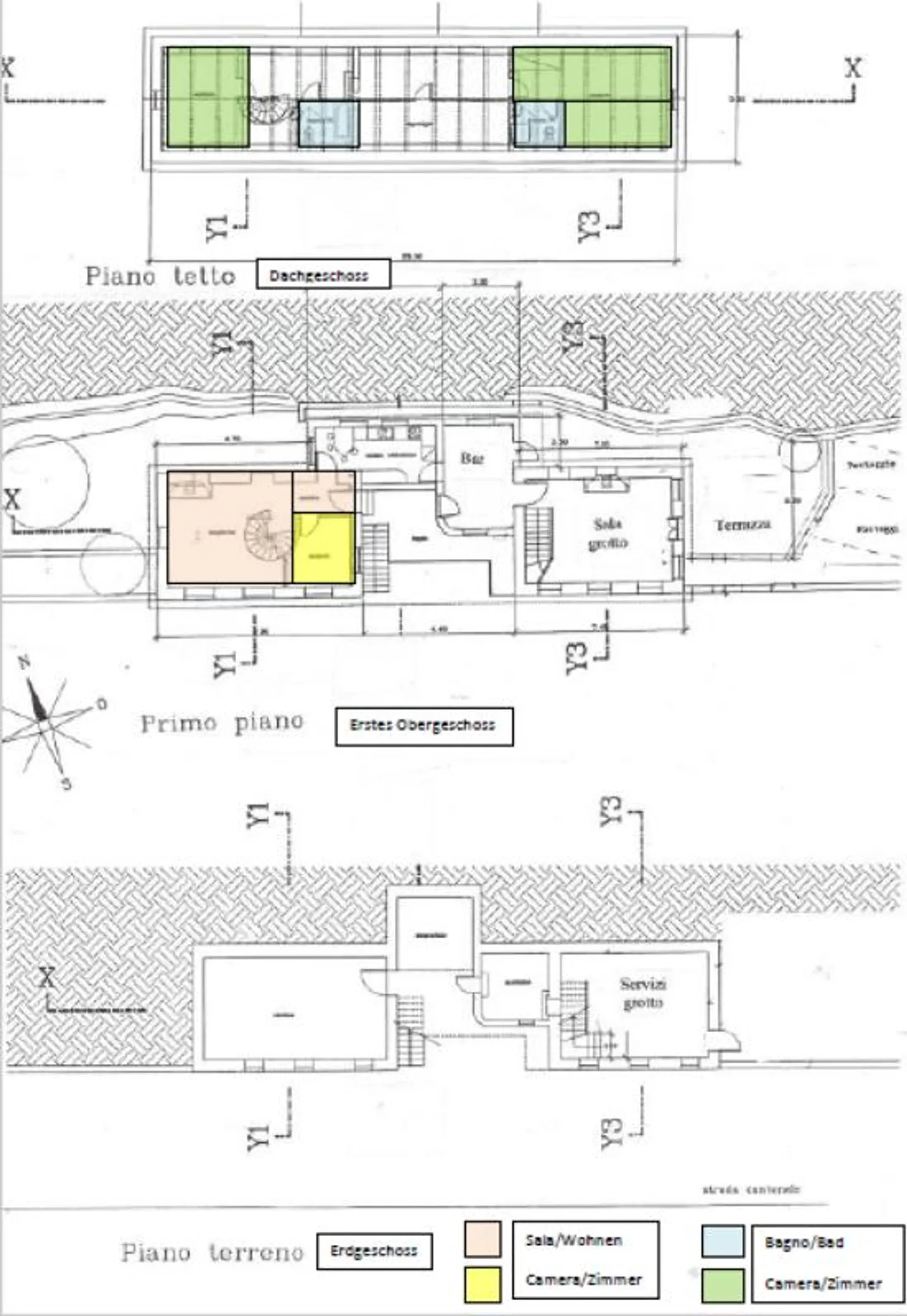
GORDEVIO - Beautiful Ticinese Grotto
The property originally built between 1850 and 1900 was completely renovated in 1992, maintaining its charm. The stone floors, fireplace, exposed wooden beams, and slate roof make this wonderful property unique.
The grotto is located in a sunny and strategic position, on the Cantonale road between Gordevio and Maggia (Ronchini area), just 9 km from Locarno. The highlight is the manager's apartment under the same roof; the Grotto-house combination is economically very interesting.
The restaurant en...
Property details
- Available from
- By agreement
- Construction year
- 1850
- Renovation year
- 1992
- Land surface
- 5000 m²




