Commercial for sale - Avenue Des Bains, 1400 Yverdon-les-Bains
Why you'll love this property
Historic mill transformation
Customizable interiors
Energy-efficient design
Arrange a visit
Book a visit today!
New promotion: "silo renaissance"
Bernard Nicod SA is pleased to exclusively present its project << Silo Renaissance >> in the charming town of Yverdon-les-Bains.
An iconic figure of the town of Yverdon-les-Bains, the former Mill, renowned for its artisanal flours, will undergo a spectacular transformation to give birth to the new Silo Renaissance project, blending housing and commerce. In order to preserve the history of the Yverdon Mill, the original volumes have been preserved, while the Silo has been reimagined i...
Property details
- Available from
- By agreement
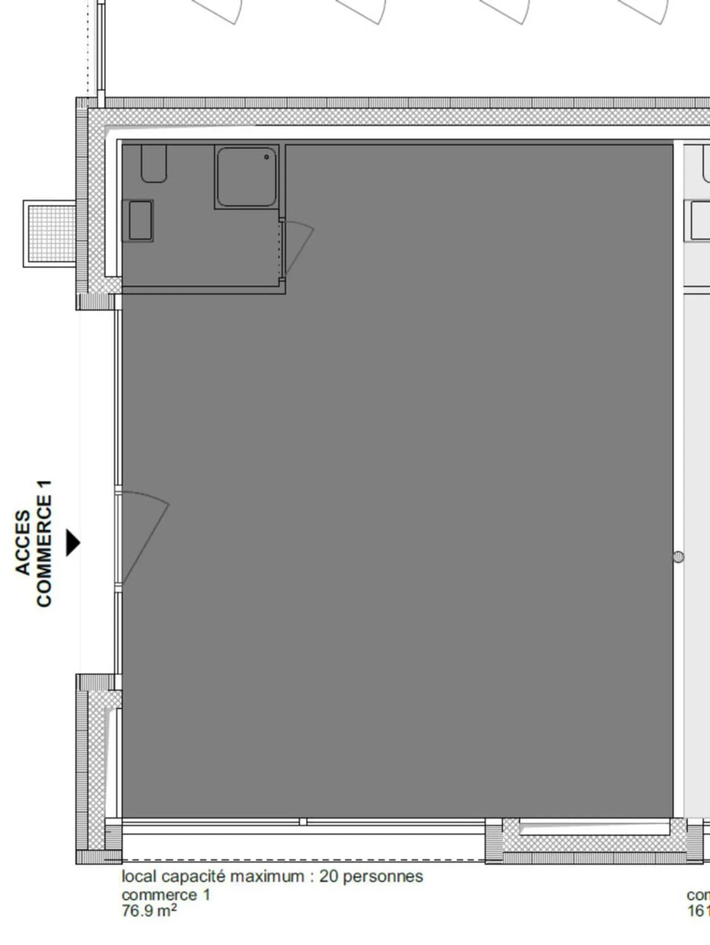
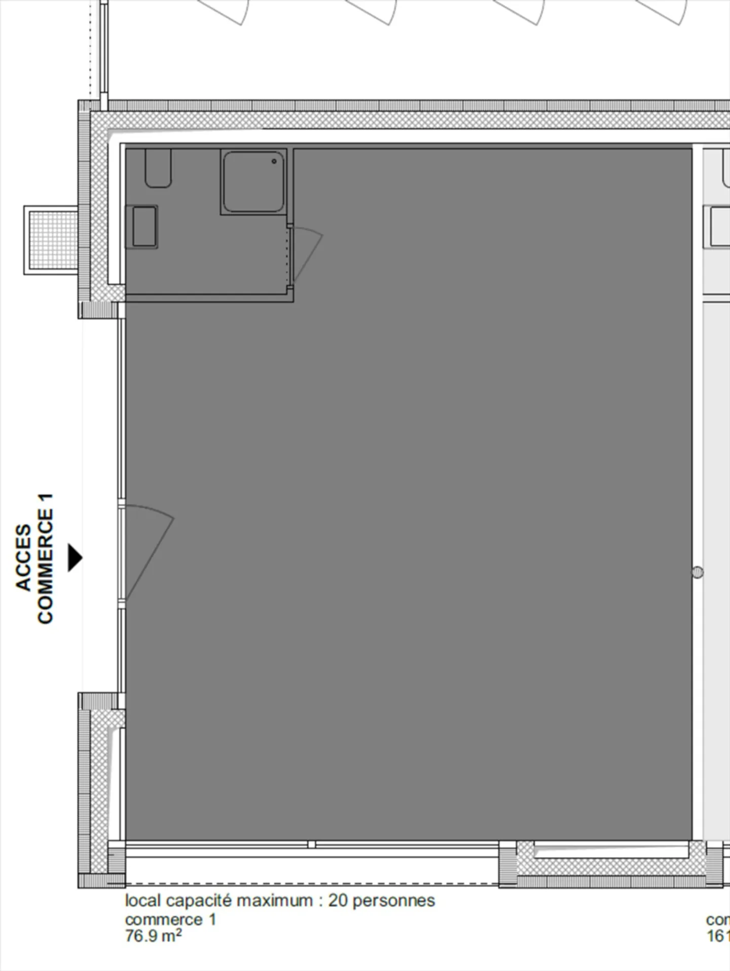
- Living surface
- 77 m²
- Usable surface
- 77 m²



