Workshop for sale - 1868 Collombey
Why you'll love this property
Customizable spaces available
High load capacity floors
Fibre optic internet access
Arrange a visit
Book a visit today!
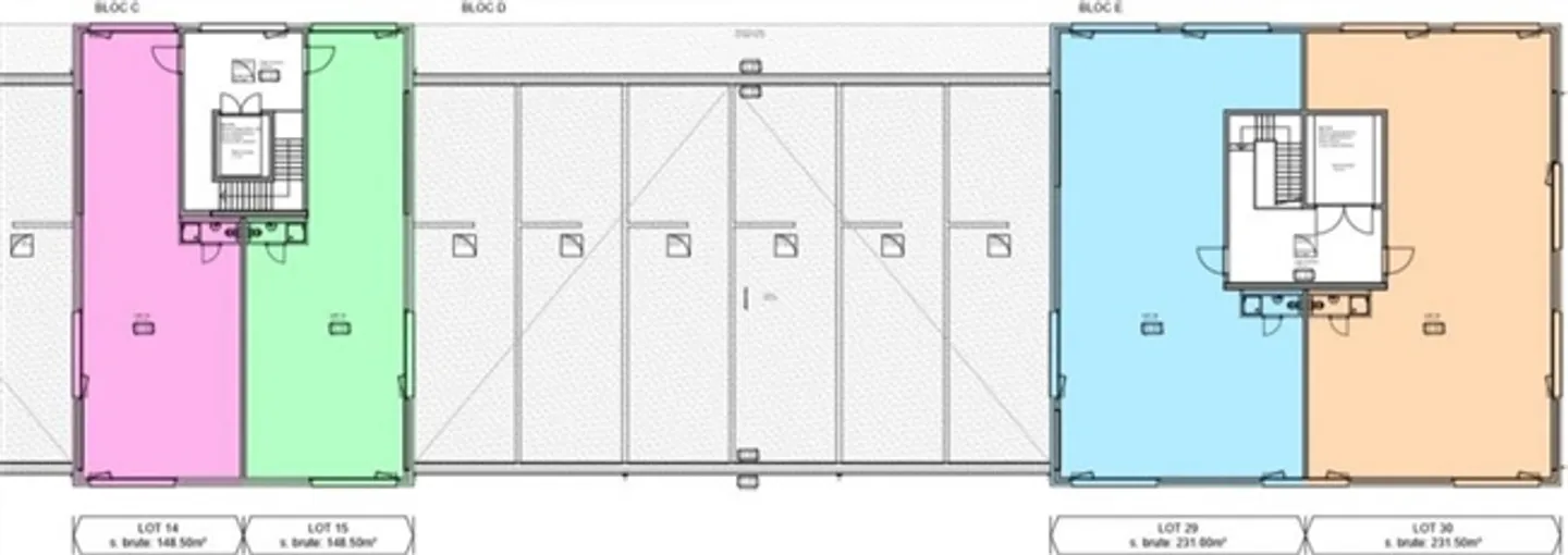
Industrial Halls, Areas and Dimensions as Required.
Industrial halls, areas and dimensions upon request.
We have various independent halls with the possibility of reuniting different lots.
- Vehicle access via 3.2 x 4.1 m or 4 x 4.1 m sectional door depending on the lot
- Interior height: 4.9 m
- Floor load: 1,000 kg per m2
- Adjustments at the discretion of the tenants
- Current strength: high current strength possible
- Fiber optic internet
- Parking available
Traditional construction with load-bearing walls and facades made of 17.5 cm thick cement br...
Property details
- Available from
- By agreement
- Rooms
- 2



