Workshop for sale - 1868 Collombey
Why you'll love this property
High load capacity 5000 kg
Customizable tenant spaces
Fibre optic internet access
Arrange a visit
Book a visit today!
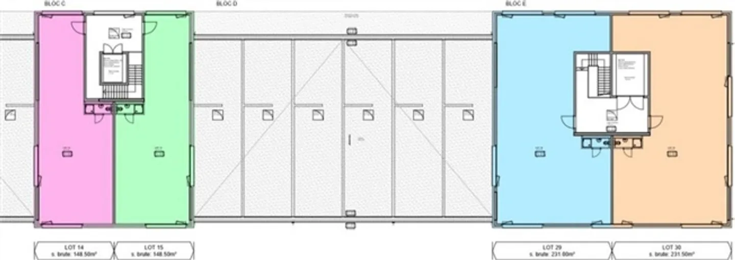
Industrial Halls, Areas and Dimensions as Required.
Industrial halls, areas and dimensions upon request.
We have various independent halls with the possibility of reassembling different lots.
- Lifting platform 300 x 600 cm deep, 220 cm high, load capacity 5000 kg
- Vehicle access depending on the lot via sectional door 3.2 x 4.1 m or 4 x 4.1 m
- Interior height: 4.9 m
- Floor load: 1,000 kg per m2
- Adjustments at the discretion of the tenants
- Current strength: high current strength possible
- Fiber optic internet
- Parking spaces available
Traditiona...
Property details
- Available from
- By agreement
- Rooms
- 2



