Workshop for sale - 1868 Collombey
Why you'll love this property
Customizable layouts available
High load capacity
Fibre optic internet access
Arrange a visit
Book a visit today!
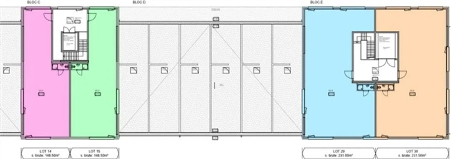
Industrial Halls, Areas and Dimensions as Required.
Industrial halls, areas and dimensions upon request.
We have various independent halls with the possibility of reuniting different lots.
- Lifting platform 300 x 600 cm deep, 220 cm high, load capacity 5000 kg
- Optional shower room: drains and hot and cold water inlets for toilets/showers are available
- Vehicle access depending on the lot via sectional door 3.2 x 4.1 m or 4 x 4.1 m
- Interior height: 4.9 m
- Floor load: 1,000 kg per m2
- Adjustments at the discretion of the tenants
- Current strength...
Property details
- Available from
- By agreement
- Rooms
- 1


