Office space for sale - 1242 Satigny
Why you'll love this property
Bright, adaptable spaces
Pedestrian-friendly design
Underground parking available
Arrange a visit
Book a visit with Benjamin today!
Satigny - New contemporary and sustainable neighborhood
This innovative project, delivered at the end of 2023, welcomes 2,000 m² of commercial space as well as 300 new residents.
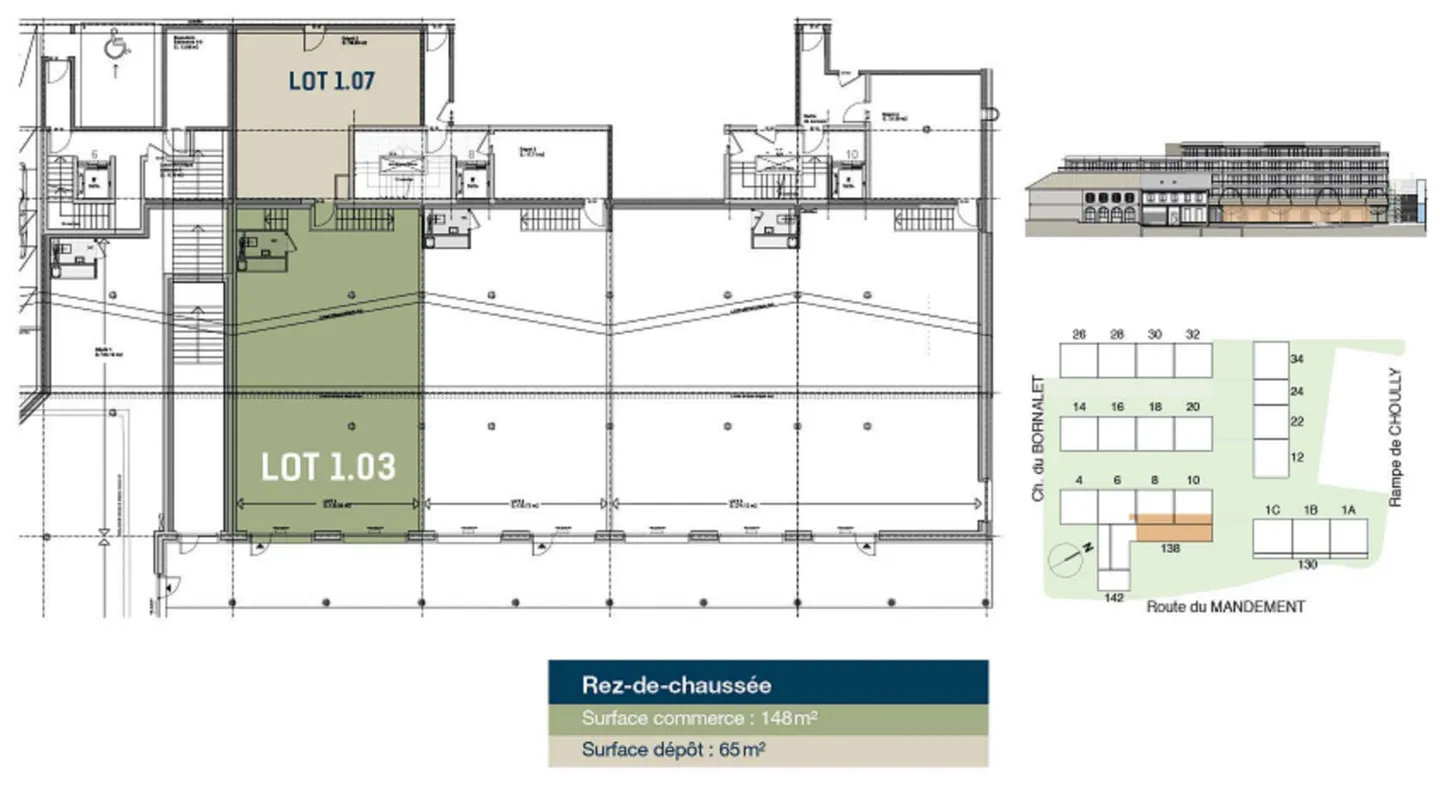
The Celliers project will offer various shops and offices ranging from 105 to 590 m². From the ground floor to the 1st floor, the various premises, adaptable to the tenant's needs, will benefit from great brightness and visibility as well as good foot traffic.
The circulation within this project will be pedestrian and composed of an axis that will constitute the main walking l...
Property details
- Available from
- By agreement
- Living surface
- 150 m²
- Land surface
- 5879 m²




