Commercial for sale - 1225 Chêne-Bourg
Why you'll love this property
Prime location near transport
Versatile spaces for business
High foot traffic area
Arrange a visit
Book a visit with Maxime today!
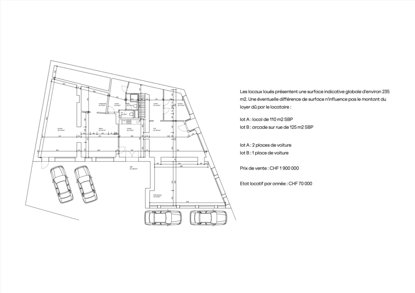
Modern Commercial Premises in Chêne-Bourg for Sale for Investors
Prime Location:
Situated at the heart of the dynamic Trois-Chêne area and bordered by the Seymaz stream, these commercial premises combine modernity and elegance in a strategic location. This space offers optimal visibility, close to the main road of rue de Genève, and benefits from direct access to the Léman Express network, with Chêne-Bourg station just a 9-minute walk away.
Regional Advantages:
Chêne-Bourg is not only a gateway to a flourishing economic hub but also the nerve center of the A...
Property details
- Available from
- By agreement
- Rooms
- 6
- Living surface
- 253 m²
- Usable surface
- 253 m²




