Residential building for sale - 8499 Sternenberg
Why you'll love this property
Idyllic, sunny location
Includes seminar rooms
Indoor pool and sauna
Arrange a visit
Book a visit with Elliscasis today!
Mehrgenerationen- und Seminarhaus an idyllischer Lage!
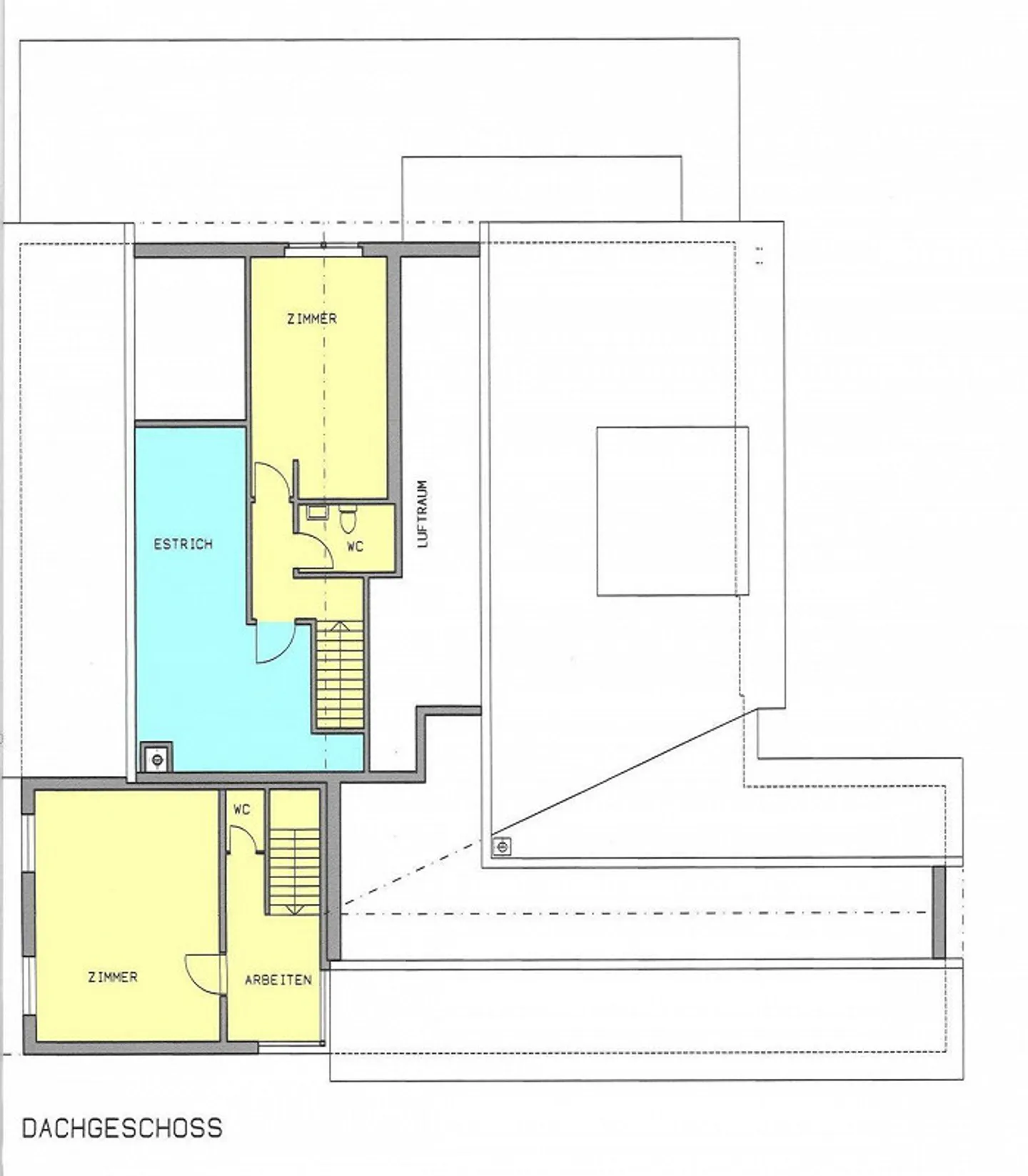
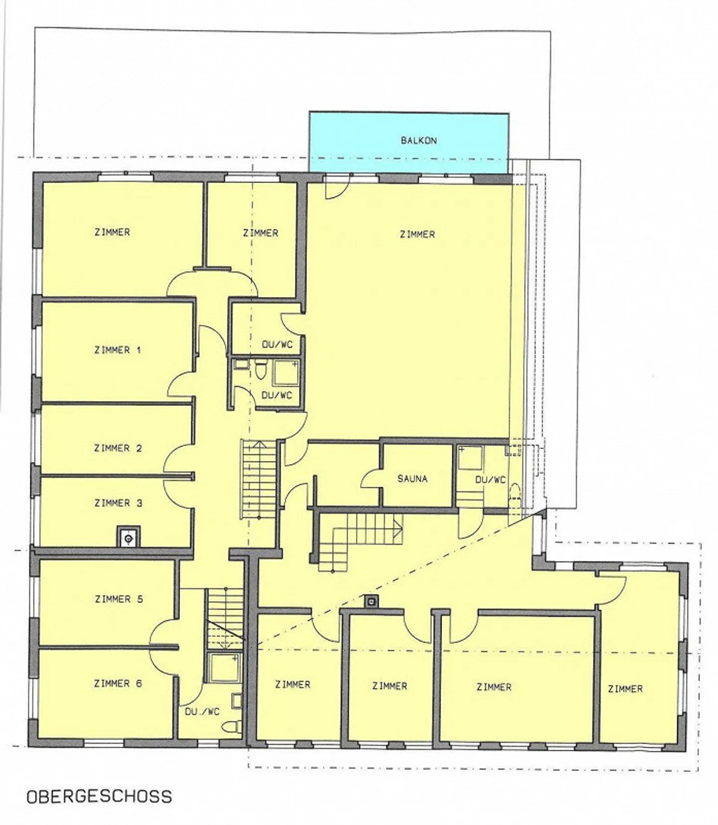
Im nördlichen Teil von Sternenberg, Gemeinde Bauma, an äusserst idyllischer, ruhiger und sonniger Lage, befindet sich das Wohn- und Gruppenhaus "Alter Steinshof" mit insgesamt 14 Schlaf- und 3 Seminarräumen, Malatelier sowie Hallenbad und Sauna. Das ursprünglich im Jahre 1865 erstellte Hauptgebäude mit Restaurant und darüber liegender Wohnung wurde in den 1970er Jahren und 1998 bedeutend erweitert. Heute stehen im ursprünglichen Gebäude etwa 170 m² und in den Erweiterungsbereichen nochmals über ...
Property details
- Available from
- By agreement
- Construction year
- 1865
- Land surface
- 1373 m²




