Residential building for sale - 6850 Mendrisio
Why you'll love this property
High rental yield potential
Strategic location near station
Ample parking facilities
Arrange a visit
Book a visit today!
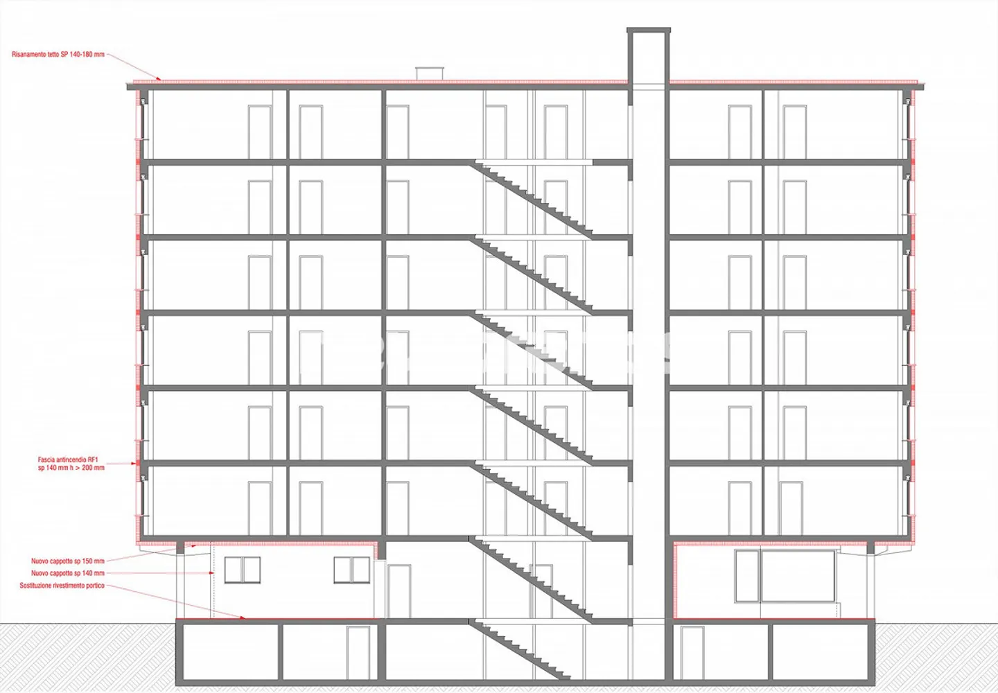
Mendrisio, rental building in the city center with storage, 13 garages
In the heart of Mendrisio, in a central and strategic location, just 400 meters from the FFS train station, a whole rental building is for sale, representing an interesting investment opportunity. The property offers excellent accessibility, as it is in close proximity to all essential services and public transport.
The building has a yield of 4.45%. The yield can be increased to over 5% of the purchase price.
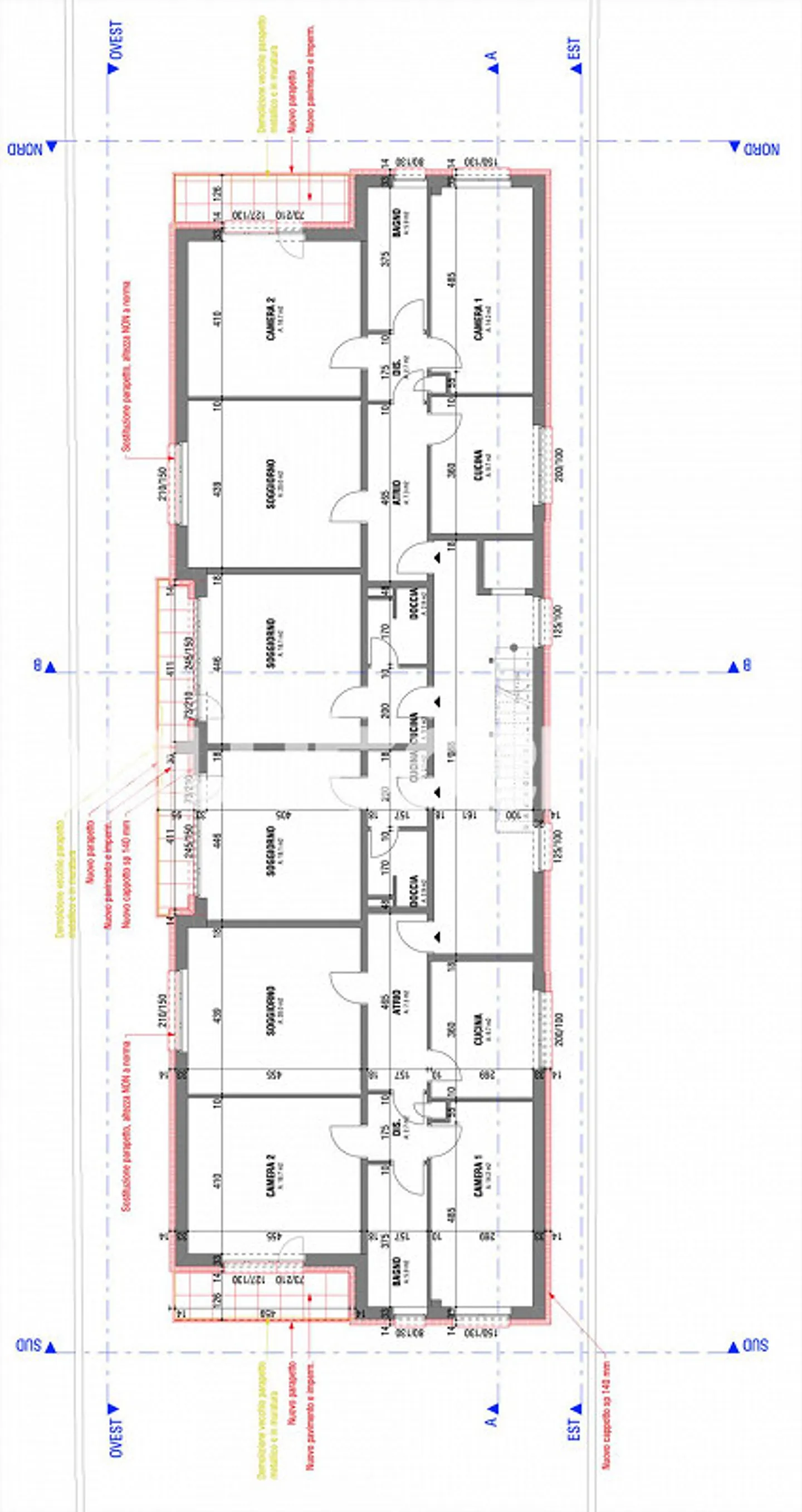
The building consists of twelve 3.5-room apartments with one bathroom, twelve one-ro...
Property details
- Available from
- By agreement
- Construction year
- 1961
- Living surface
- 1285 m²



