Mixed-use building for sale - 6833 Vacallo
Why you'll love this property
Flexible space configurations
High ceilings for logistics
Energy-efficient design
Arrange a visit
Book a visit today!
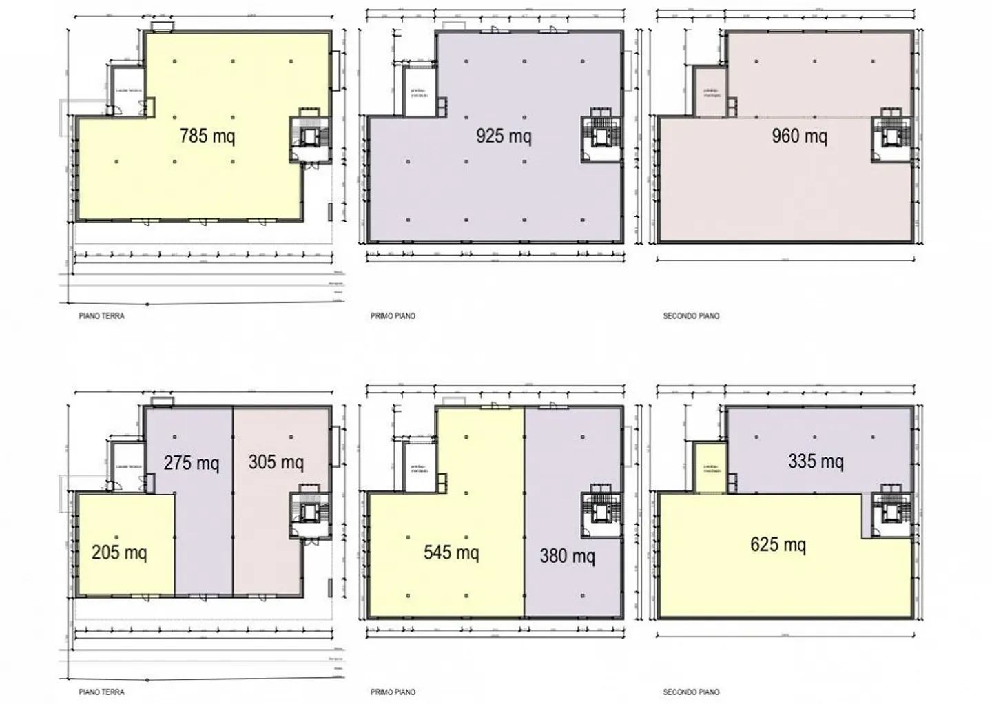
SUPERFICIE COMMERCIALE-INDUSTRIALE-ARTIGIANALE A VACALLO
Nel comune di Vacallo è in fase di costruzione un moderno stabile a destinazione commerciale, industriale e artigianale, sviluppato su tre piani fuori terra per una metratura complessiva di 2'670 mq.
La struttura, realizzata interamente in calcestruzzo armato, offre superfici ampie, versatili ed elevate portate, ideali per attività produttive, logistiche e di deposito.
È possibile acquistare l'intero stabile, oppure scegliere blocchi singoli a partire da 205 mq, combinare più spazi, acquistare un...
Property details
- Available from
- By agreement
- Construction year
- 2025



