Mixed-use building for sale - 6830 Chiasso
Why you'll love this property
Renovation project approved
Flexible layout options
Ideal investment opportunity
Arrange a visit
Book a visit today!
OFFICE A FEW STEPS FROM THE CENTER OF CHIASSO
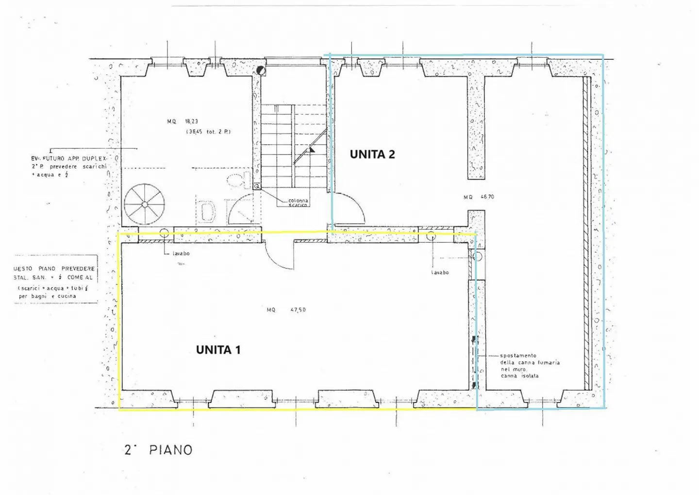
We propose for sale in a central and well-served location, a unit to be renovated located on the second and last floor (without elevator) of a building consisting of only 7 units.
The property has a large room of about 48 m², currently used as an office, which can be easily transformed, through a renovation intervention and a change of use, into a functional and modern three-room residential unit. Renovation project already approved by the municipality.
Laundry room available in common.
Ideal solut...
Property details
- Available from
- By agreement



