Residential building for sale - Mundgasse 3, 3900 Brigerbad
Why you'll love this property
Idyllic village location
Close to public transport
Potential for rental income
Arrange a visit
Book a visit with Daniel today!
Cozy 3-room holiday apartment in brigerbad
Cozy 3-room holiday apartment for personal use or as an investment property in our rental.
The residential building with its three 3.5-room apartments is located in the old village of Brigerbad in a very idyllic location. The bus stop is just a few meters away. Restaurants and the Brigerbad can be reached within a 5-minute walk.
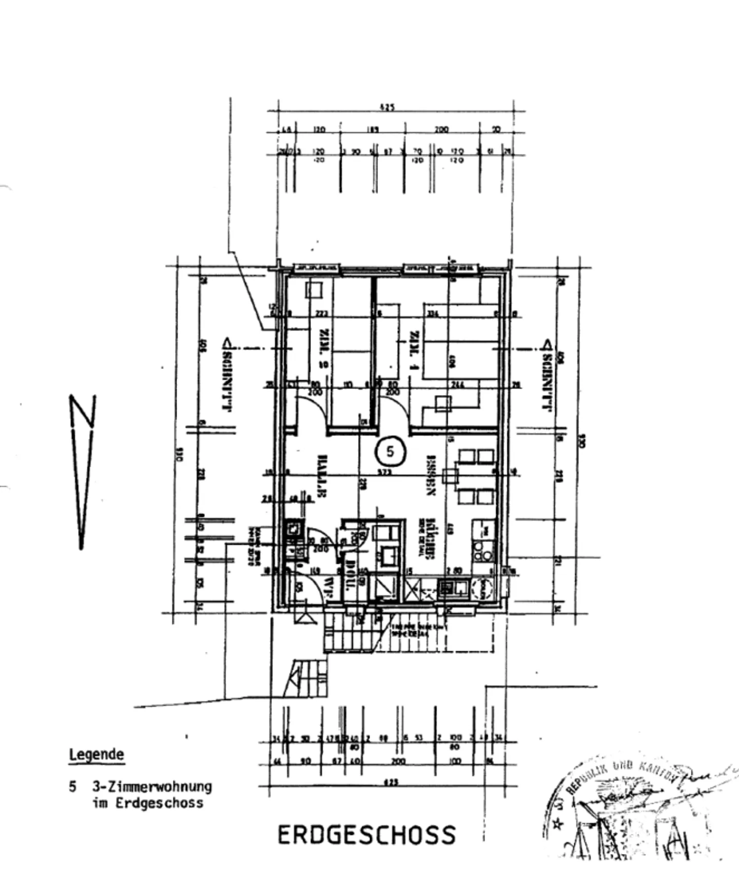
The building has 3 floors. Each floor has a 3-room apartment. The ground floor apartment has two bedrooms, a bathroom, and an open living/dining area with a kitchen. The b...
Property details
- Available from
- By agreement
- Rooms
- 3.5
- Construction year
- 1989
- Renovation year
- 2023
- Living surface
- 65 m²
- Usable surface
- 65 m²



