Residential building for sale - Allschwilerplatz 2, 4055 Basel
Arrange a visit
Book a visit with Patric today!
Wohnen im charmanten Jugendstilhaus in Basel
Wir verkaufen dieses Wohnhaus, das 1905 in typischer Jugendstil – Architektur erstellt wurde.
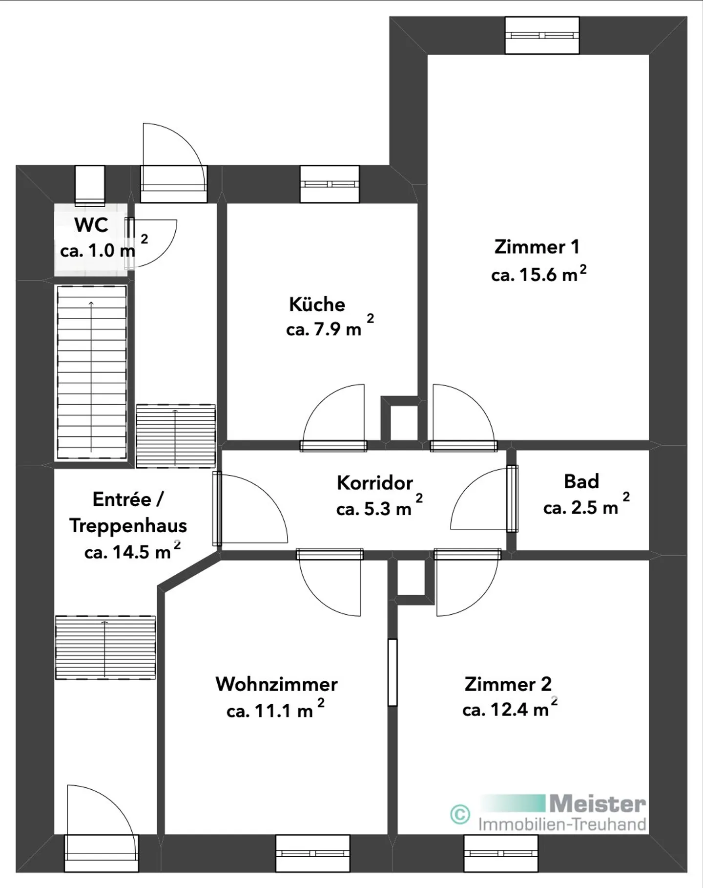
Die Immobilie verfügt über vier Dreizimmer - Wohnungen mit funktionalen Grundrissen.
Die Wohnungen im Erdgeschoss und im 1. Obergeschoss sind derzeit vermietet. Die Wohnung im 2. und 3. Obergeschoss wurden bisher von den Eigentümern bewohnt.
Die Liegenschaft präsentiert sich heute in teilweise ursprünglichem Zustand und freut sich auf Ihren Besuch.
Für weitere Informationen und zur Vereinbarung eines Besich...
Property details
- Available from
- By agreement
- Rooms
- 12
- Construction year
- 1905
- Renovation year
- 2017
- Living surface
- 248 m²
- Land surface
- 158 m²
- Building volume
- 1474 m³




