New penthouse apartment
Why you'll love this property
Triple-glazed windows
Energy-efficient design
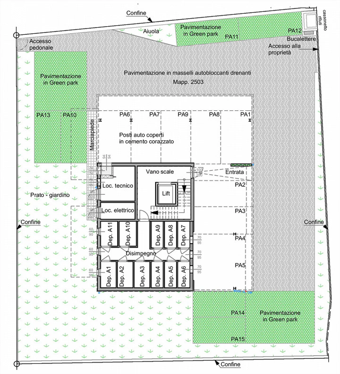
Elevator access to cellar
Arrange a visit
Book a visit with Orari today!
Residential area a stone's throw from the center in a convenient and well-served location.
Building structure of "massive" type with terracotta and reinforced concrete construction elements, perimeter walls insulated with coat, CA slabs, windows with triple insulating glass.
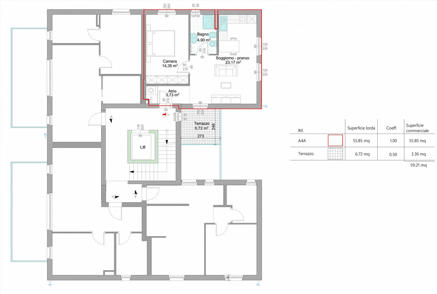
New and modern construction nearing completion consisting of 10 apartments of 2.5 rooms and 1 apartment of 4.5 rooms distributed between the 1st and 3rd floors. Storage cellars and parking spaces on the ground floor.
The buildi...
Property details
- Available from
- By agreement
- Rooms
- 2.5
- Living surface
- 60 m²
- Floor
- 3rd




