Penthouse for sale - Via Merlina, 6962 Viganello
Why you'll love this property
Spacious open-plan living
Master bedroom with en-suite
Direct elevator access
Arrange a visit
Book a visit with Castillo today!
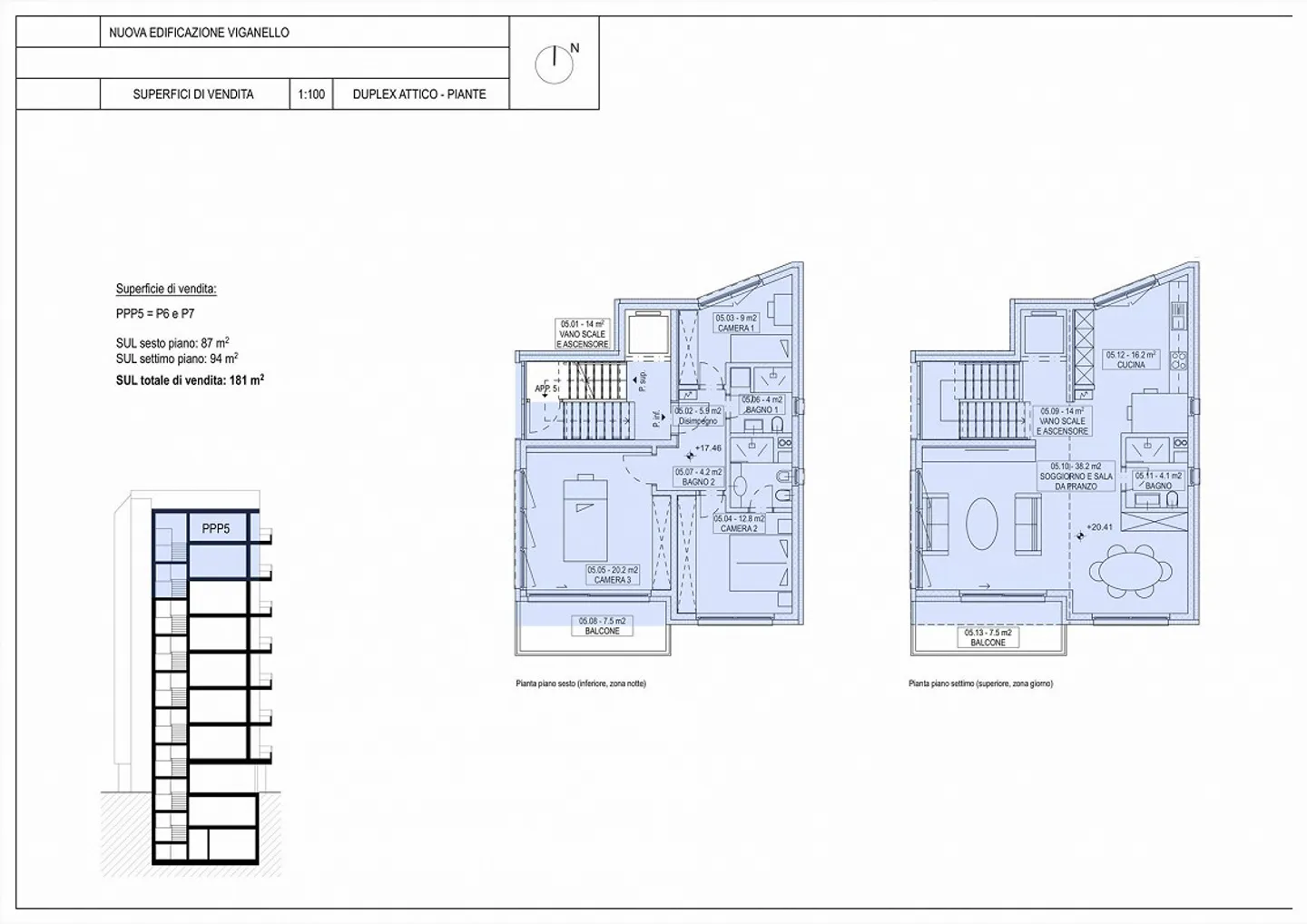
New residence! modern duplex penthouse with view in viganello
Sale Price: CHF 1,800,000.–
Underground Parking Space: CHF 50,000.– each (not included in the price)
Living Area (SUL): 174.00 m²
Commercial Area: 181.00 m² (SUL + 1/2 balconies)
Rooms: 4.5
In Viganello, in a convenient and well-served residential area, we offer for sale this refined newly built duplex penthouse. The apartment is spread over two levels and offers functional, well-organized spaces.
Key Features:
-
Top floor (91.00 m²) with spacious open-plan kitchen, living and dining area with direct ac...
Property details
- Available from
- By agreement
- Rooms
- 4.5
- Construction year
- 2026
- Living surface
- 174 m²



