Penthouse for sale - Untere Eienstrasse, 4417 Ziefen
Why you'll love this property
Large terrace for relaxation
Accessible lift for convenience
Community garden for gatherings
Arrange a visit
Book a visit with Verkaufsabteilung today!
Civenne – Your new home for the third phase of life
Welcome to your new home in Ziefen! The Civenne development is perfectly located, just about 100 meters from the nearest bus stop and is harmoniously embedded in the village center. The next larger city, Liestal, can be reached in just 10 minutes by car.
Civenne offers you a pleasantly quiet atmosphere despite the central location. Enjoy the wonderful view of forests and green hills in the distance – a place that invites you to dream.
What to e...
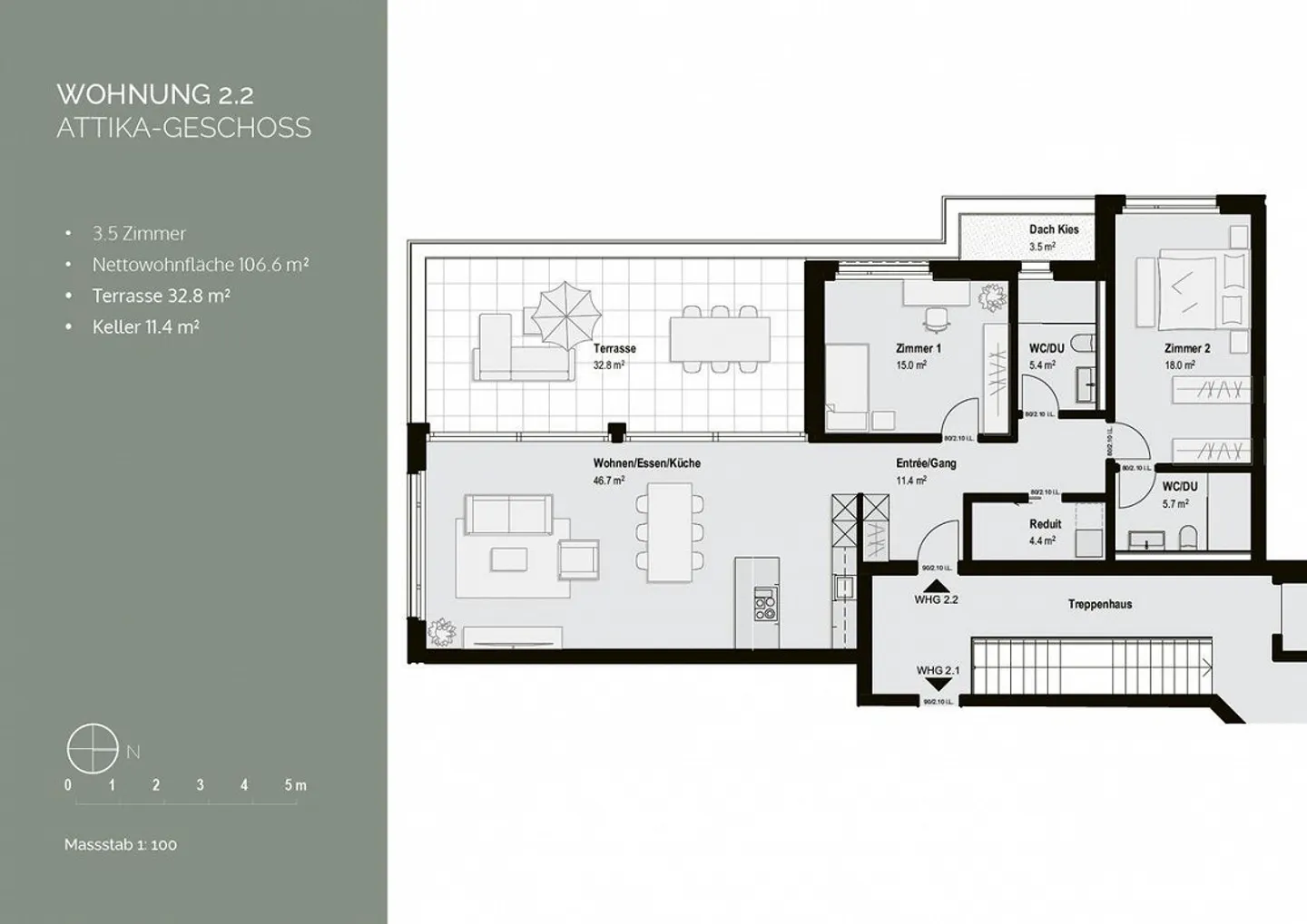
Property details
- Available from
- By agreement
- Rooms
- 3.5
- Bathrooms
- 2
- Living surface
- 106.6 m²
- Terrace surface
- 32.8 m²



