Apartment for sale - Seetalstrasse, 5630 Muri AG
Why you'll love this property
Spacious green courtyard
High-quality modern finishes
Ideal location near nature
Arrange a visit
Book a visit with Team today!
New construction project "lindenberg" - central living
New construction project "Lindenberg"
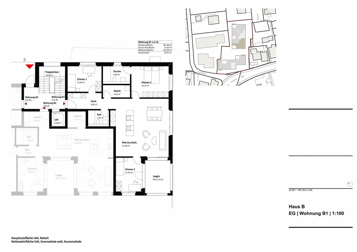
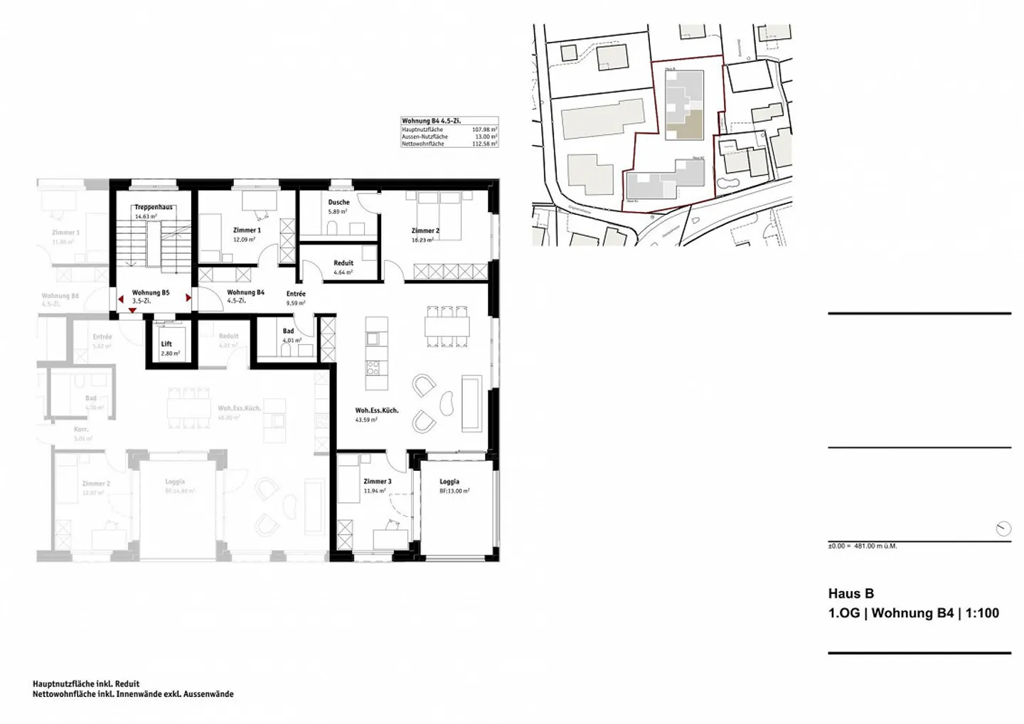
We are pleased to introduce the approved construction project "Lindenberg". It is a modern multi-family house with a total of 8 apartments. The architecturally well-thought-out apartments and ancillary rooms offer an optimal mix of comfort and functionality and cater to different living needs. The spacious courtyard promises a green retreat that invites relaxation and lingering.
The "Lindenberg" project combines modern living with a high standard of living, ma...
Property details
- Available from
- By agreement
- Rooms
- 4.5
- Construction year
- 2026
- Living surface
- 108 m²



