Apartment for sale - Rietweg, 8477 Oberstammheim
Why you'll love this property
Flexible winter garden balconies
Traditional gabled roofs
Convenient underground parking
Arrange a visit
Book a visit today!
Condominiums "struppler"
[struppler.haeberlinag.ch](https://struppler.haeberlinag.ch/#tab-house-h87 "Project website <>")
Construction start has begun!
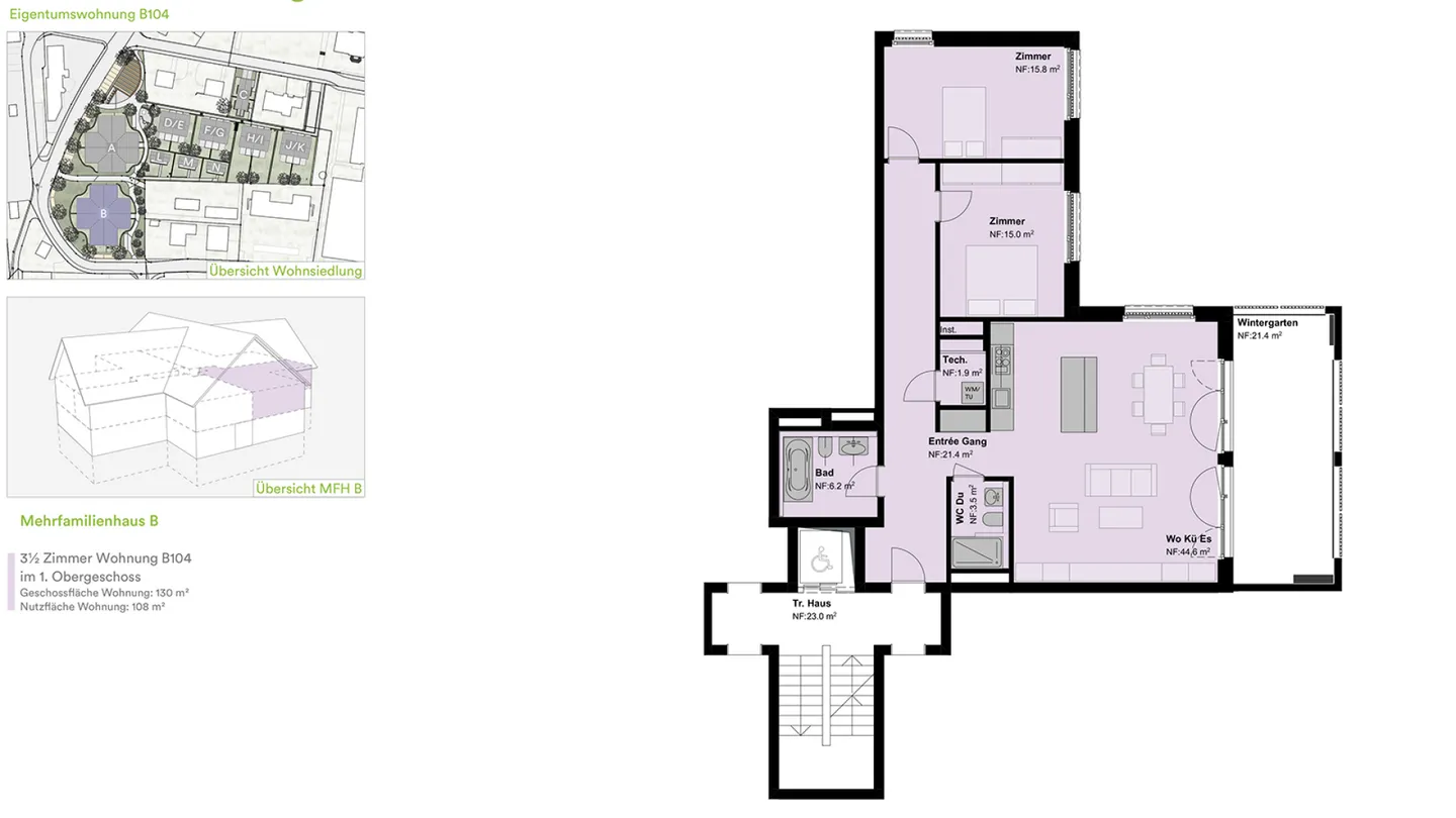
Between Unter- and Oberstammheim, 24 modern condominiums with 2.5-4.5 rooms are being built - ideal for singles, couples, or families who value bright living space, functional floor plans, and a relaxed village life.
The balconies can be flexibly used as a winter garden with sliding glass panels. All houses will have typical local gable roofs and will be connected to ...
Property details
- Available from
- By agreement
- Rooms
- 3.5
- Bathrooms
- 2
- Construction year
- 2025
- Living surface
- 108 m²
- Usable surface
- 108 m²
- Floor
- 1st



