Apartment for sale - Wangentalstrasse 96, 3172 Niederwangen b. Bern
Why you'll love this property
Spacious open kitchen
Community garden with Alps view
Newly renovated bathroom
Arrange a visit
Book a visit with Strohecker today!
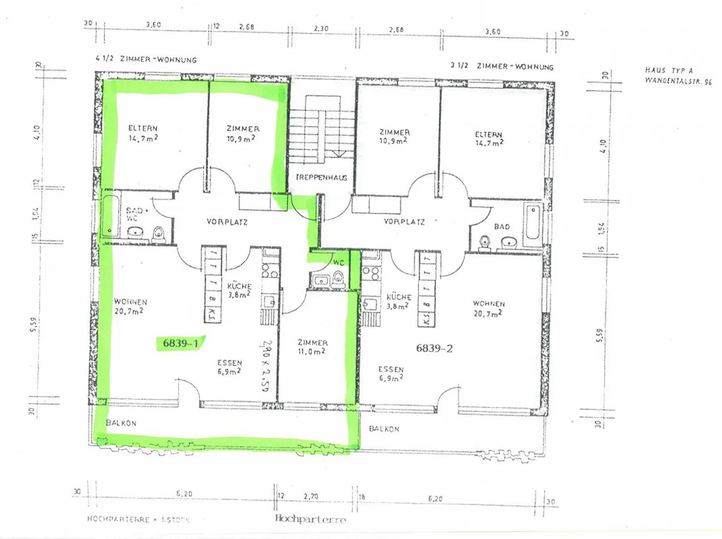
Sunny 4.5 room apartment in niederwangen
On the edge of Niederwangen, on the way to Oberwangen, is the beautiful high ground apartment. It is only a few minutes' walk from the S-Bahn station or the nearest bus line.
Niederwangen belongs to the municipality of Köniz and offers a very good infrastructure as well as several S-Bahn and bus connections.
Drivers benefit from the direct motorway connection in Niederwangen. In addition, there is a direct road connection to the popular leisure and shopping center Westside in Bern-Brünnen.
Despite ...
Property details
- Available from
- By agreement
- Rooms
- 4.5
- Construction year
- 1970
- Renovation year
- 2021
- Living surface
- 90 m²
- Floor
- 11th
- Building floors
- 3



