Apartment for sale - Rue De La Vignette 9, 1530 Payerne
Why you'll love this property
Surrounded by green spaces
Loggia with nature views
Close to train station
Arrange a visit
Book a visit with Promotions today!
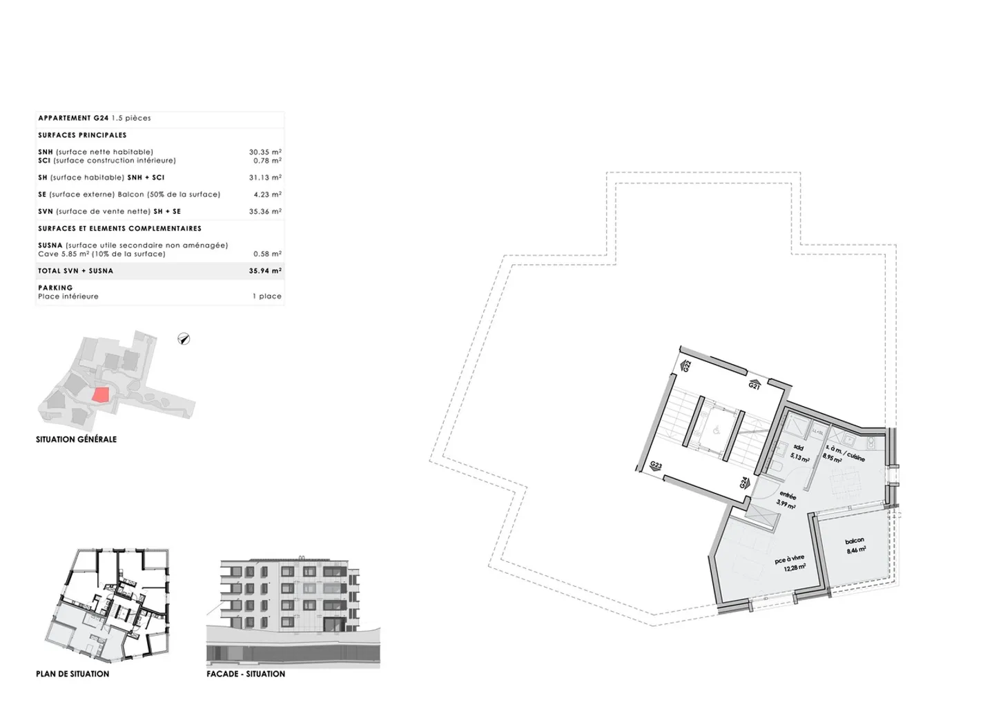
1.5 room apartment
A green oasis close to the train station
Enjoy quality of life, tranquility, and a strong connection with nature in the heart of Payerne, in this residential building of 15 apartments with multiple layouts perfectly connected, set within a large central green space, protected and landscaped, the true heart of the neighborhood, including pedestrian paths, relaxation areas, and playgrounds.
Studio on the 2nd floor with loggia, surrounded by nature
- Living space of over 21m2, access to an 8.5m2 log...
Property details
- Available from
- By agreement
- Rooms
- 1.5
- Bathrooms
- 1
- Living surface
- 31 m²



