Duplex for sale - Liebensberg 8, 8543 Bertschikon
Why you'll love this property
Stunning green views
Customizable interior design
Direct lift access to units
Arrange a visit
Book a visit with Roland today!
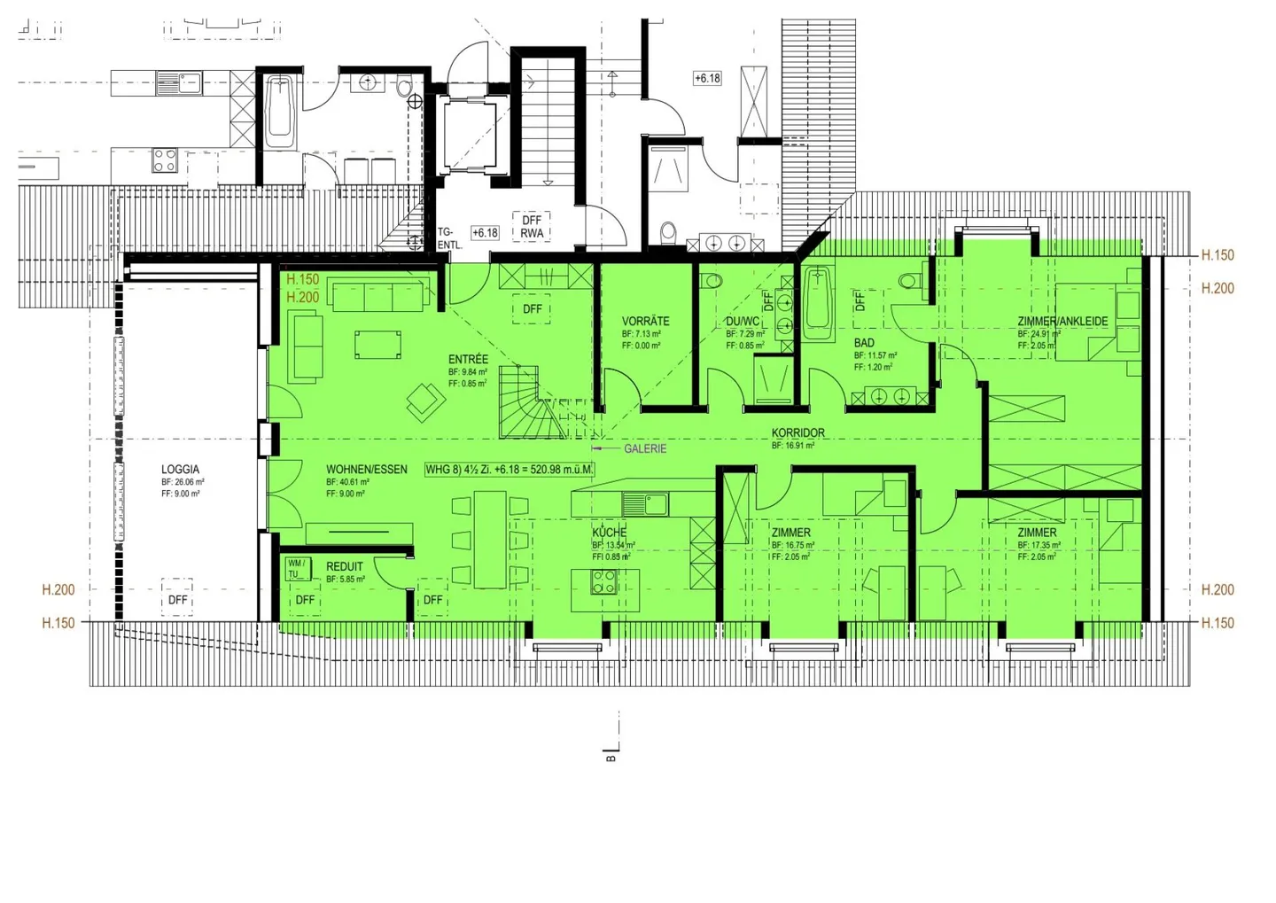
New construction: condominium (top floor with gallery, no. 8) in rural liebensberg (municipality of wiesendangen)
In rural Liebensberg (8543 Bertschikon), between Wiesendangen and Gachnang / Islikon above Gundetswil, these 9 beautiful new condominiums are being built. Those who appreciate peace and a view of greenery and still want to reach the cities of Winterthur and Frauenfeld in a short time will find their dream home here. Construction has already started and the apartments are expected to be ready for occupancy in August 2026.
There will be 9 individually different apartments with room numbers from 2.5...
Property details
- Available from
- By agreement
- Rooms
- 4.5
- Construction year
- 2026
- Living surface
- 186 m²
- Floor
- 2nd
- Building floors
- 3




