Duplex for sale - 7000 Chur
Why you'll love this property
Stunning city views
Modern high-quality finish
Covered parking for 3 cars
Arrange a visit
Book a visit with Marijana today!
Living Comfort in Prime Location
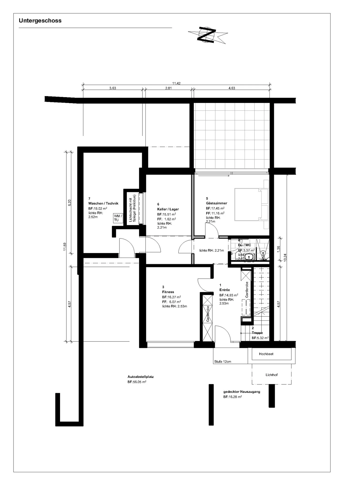
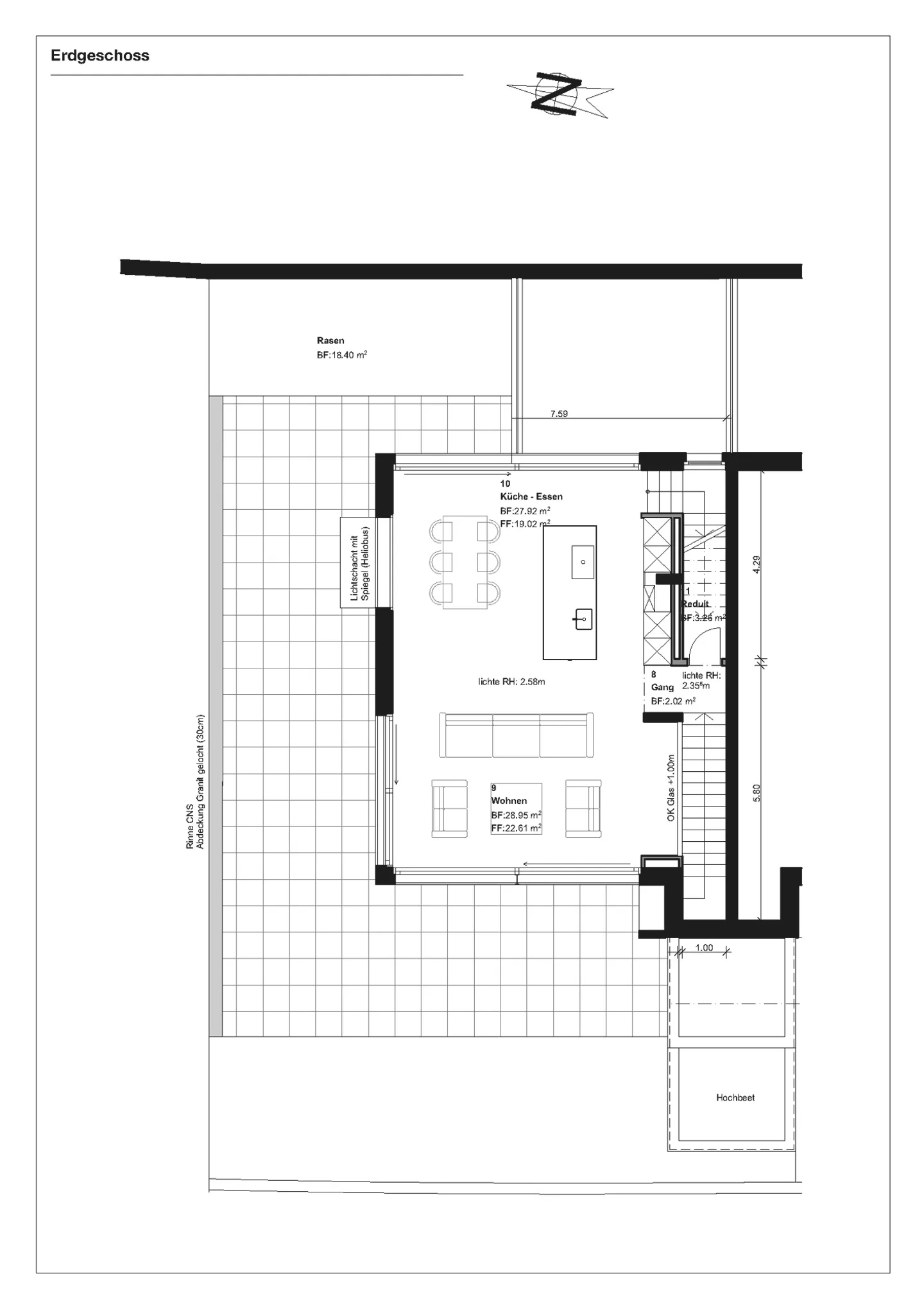
A dream residence in the most sought-after location of Chur! This semi-detached house with 6.5 rooms not only offers plenty of space for your family but also a breathtaking view over the city. The generous living area and additional ancillary rooms fulfill numerous living wishes.
Inside, you will find high-quality, modern furnishings that are perfectly tailored to your family's needs. With a total of 5 bedrooms and 3 bathrooms, there is enough space for everyone.
This gem was built in 2012 and...
Property details
- Available from
- By agreement
- Rooms
- 6.5
- Construction year
- 2012
- Living surface
- 220 m²
- Land surface
- 248 m²




