1 / 10

Apartment for sale - 6943 Vezia

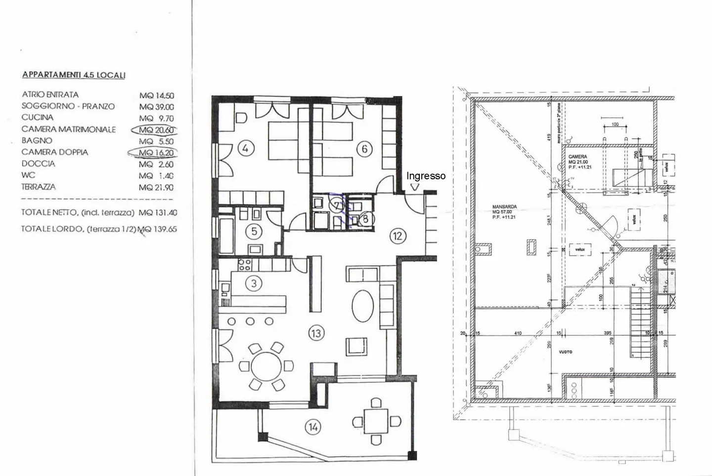
4.5 rooms • 160 m² • 3rd floor
CHF 900’000.-
CHF 5’000 m²

Why you'll love this property

Spacious 22 sqm terrace

Bright open-space living

Generous 57 sqm loft area

Arrange a visit

Book a visit today!

This description has been automatically translated from Italian.

Penthouse 4.5 with terrace and open view in the green in vezia

Bright duplex penthouse 4.5 rooms of about 180 sqm, with a large terrace of about 22 sqm, built in the early 2000s, currently in perfect condition and as new, located on the third floor in a sober and elegant building of only 8 apartments on 4 floors above ground with elevator, in the municipality of Vezia.

Also sellable as a second residence.

The property is arranged as follows:

entrance to a spacious hallway equipped with a 5-door wardrobe, 1 service bathroom with shower and washer-dryer, 2 large...

Property details

Available from
By agreement
Rooms
4.5
Construction year
2000
Living surface
160
Usable surface
180
Floor
3rd

Features

Balcony
Animal friendly

Points of interest nearby

Public transportation - 0.2 km
Shopping - 0.5 km
Kindergarten - 0.5 km
Elementary school - 0.5 km
High school - 2 km

Agency

Metropolis Immobiliare
Metropolis Immobiliare
Address:Via Cantonale, 43, 6928, Manno, CH
(175 reviews)
Ref: RP-5194-9315
Online since
15/10/2025
17 hours ago

Location

6943 Vezia