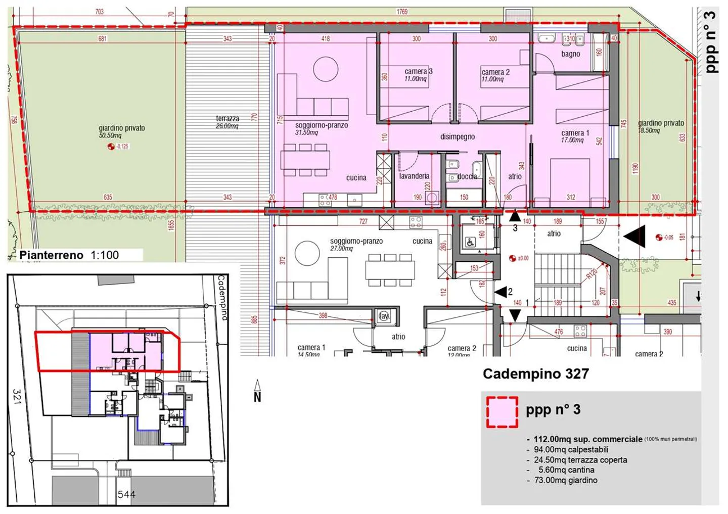
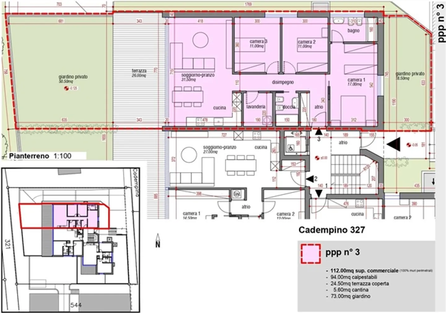
Apartment for sale - 6814 Cadempino
Why you'll love this property
Spacious private garden
Large terrace for relaxation
Energy-efficient features
Arrange a visit
Book a visit with The today!
Are you looking for a modern apartment with a large veranda and private garden in Cadempino, in a quiet area?
We offer you a new complex under construction, consisting of 6 apartments, served by an elevator and equipped with large verandas and private gardens. It is located in a comfortable environment, offering tranquility and easy access to services.
The apartment, located on the ground floor, is individually customizable and includes:
- Large living area with living room and open kitchen with ac...
Property details
- Available from
- By agreement
- Rooms
- 5
- Bathrooms
- 2
- Construction year
- 2026
- Living surface
- 112 m²
- Garden surface
- 73 m²




