*** All properties and photos on www.remax.ch and www.newhome.ch ***
*** All properties and photos on www.remax.ch and www.newhome.ch ***
The property is located in the municipality of Lumino and is marked with parcel no. 1601 and is in the zone "Residential area R3I", where there are currently no further buildings.
Thanks to a new access road to the property, it will be possible to easily reach both buildings of the Rafflesia residence.
The buildings will be arranged on three floors, as well as a basement for garages and storage rooms.
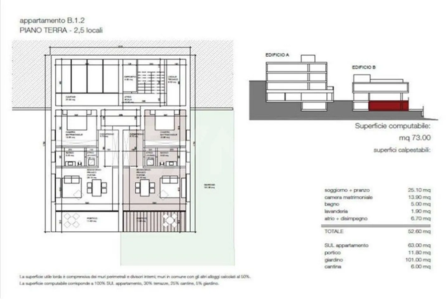
Ten modern and bright residential units with a high standard of finish will be created, which will vary in size. Each apartment has a private garden or a large terrace.
-
*** All properties and photos on www.remax.ch and www.newhome.ch ***
*** All properties and photos on www.remax.ch and www.newhome.ch ***
The lot is located in the municipality of Lumino and is identified by parcel no. 1601 RFD, it falls within the residential zone R3I, which is currently completely free of buildings, except for a small beehive.
Thanks to a new access road to the lot, it will be possible to reach both buildings of the Rafflesia Residence, designed according to a medium-high standard in line with current needs.
The properties will be arranged on three above-ground levels, in addition to a basement for garages and cellars; there will be ten residential units of different sizes with private gardens and large terraces.
Energy consumption
No dataGreenhouse gas emmissions
No data6533 Lumino (TI)