Apartment for sale - 6517 Arbedo
Why you'll love this property
Spacious private garden
Modern open-plan design
Close to Bellinzona amenities
Arrange a visit
Book a visit today!
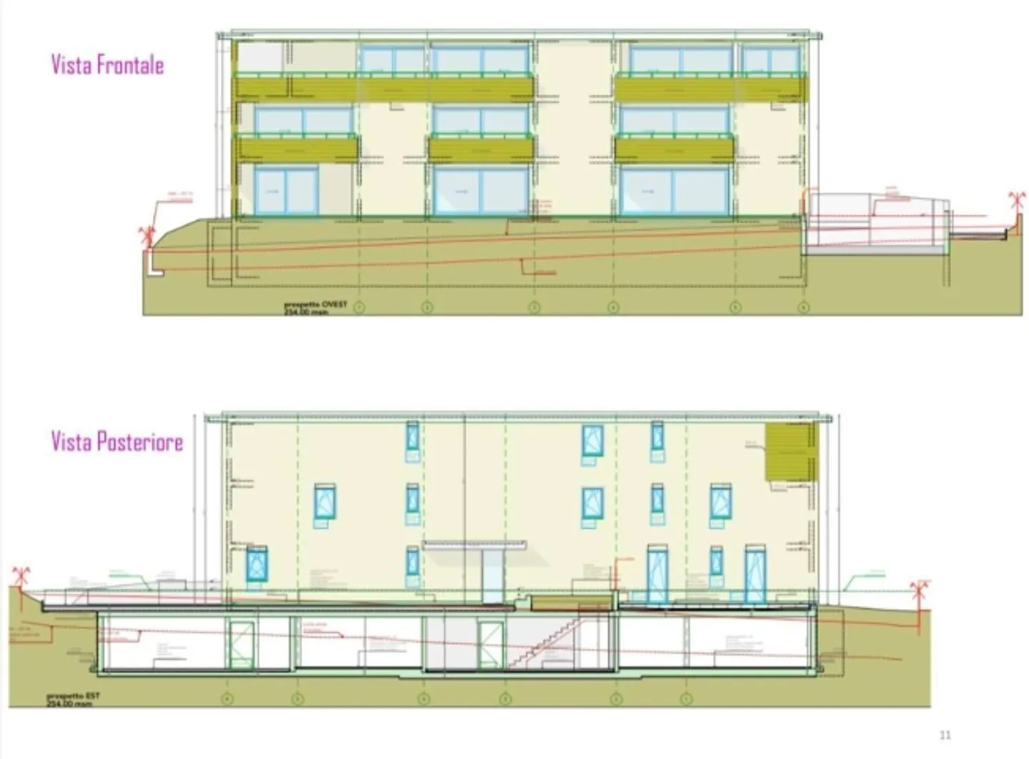
Beautiful 4.5-room apartment with garden
A modern and elegant new residence includes six apartments that are soon to be built in the municipality of Arbedo, the 4.5-room apartment offered for sale on the ground floor features a large private garden. The residence has a privileged location close to both services and the proximity to the city of Bellinzona, which can be reached in a few minutes, a good connection to the main roads, which alongside the degree of quality and lifestyle allows for a convenient connection to the surrounding s...
Property details
- Available from
- By agreement
- Rooms
- 4.5
- Construction year
- 2024



