Apartment for sale - Chemin Des Groseilles 4, 1635 La Tour-de-Trême
Why you'll love this property
Spacious living area of 42m²
Loggia with motorized awning
Geothermal heating system
Arrange a visit
Book a visit with Promotions today!
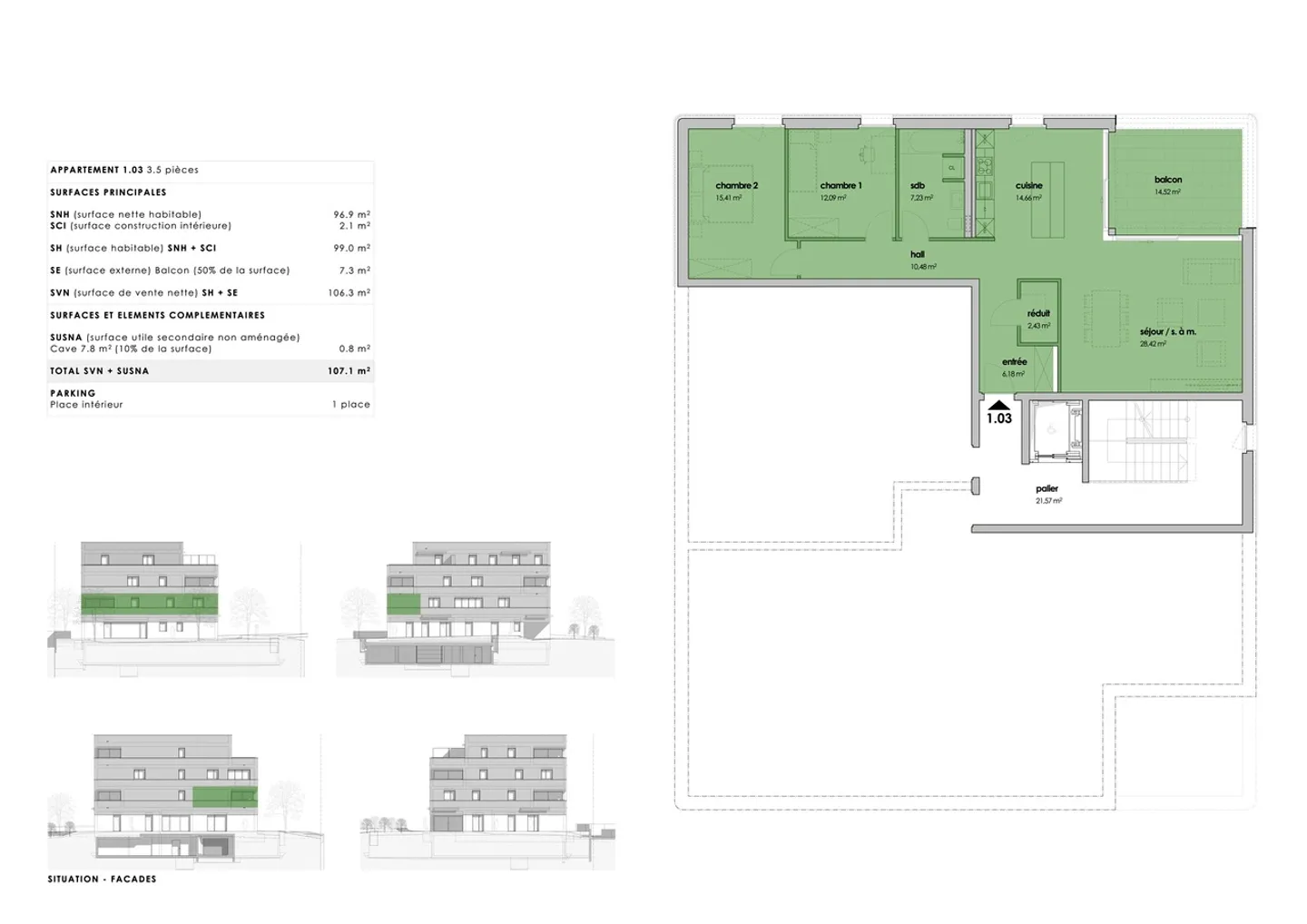
Located on the 1st floor of a new condominium building, this very large 3.5-room apartment of superior standing at the gates of Bulle will charm you with its ideal location, its bucolic setting, and its breathtaking view of Gruyère, Moléson, and its hills.
Entrance with wall cabinets and storage
Living space of over 42m2 with access to a loggia
Equipped kitchen with island, of superior quality, Kolly furniture
Two bedrooms of 15m2 and 12m2
Bathrooms with bathtub, with pre-installation for washin...
Property details
- Available from
- By agreement
- Rooms
- 3.5
- Construction year
- 2026
- Living surface
- 99 m²
- Land surface
- 1883 m²
- Floor
- 1st
- Building floors
- 1



