Attic flat for sale - Haushaldenstrasse 2a, 8374 Dussnang
Why you'll love this property
Sunny balconies
Renovated parquet floors
Close to public transport
Arrange a visit
Book a visit today!
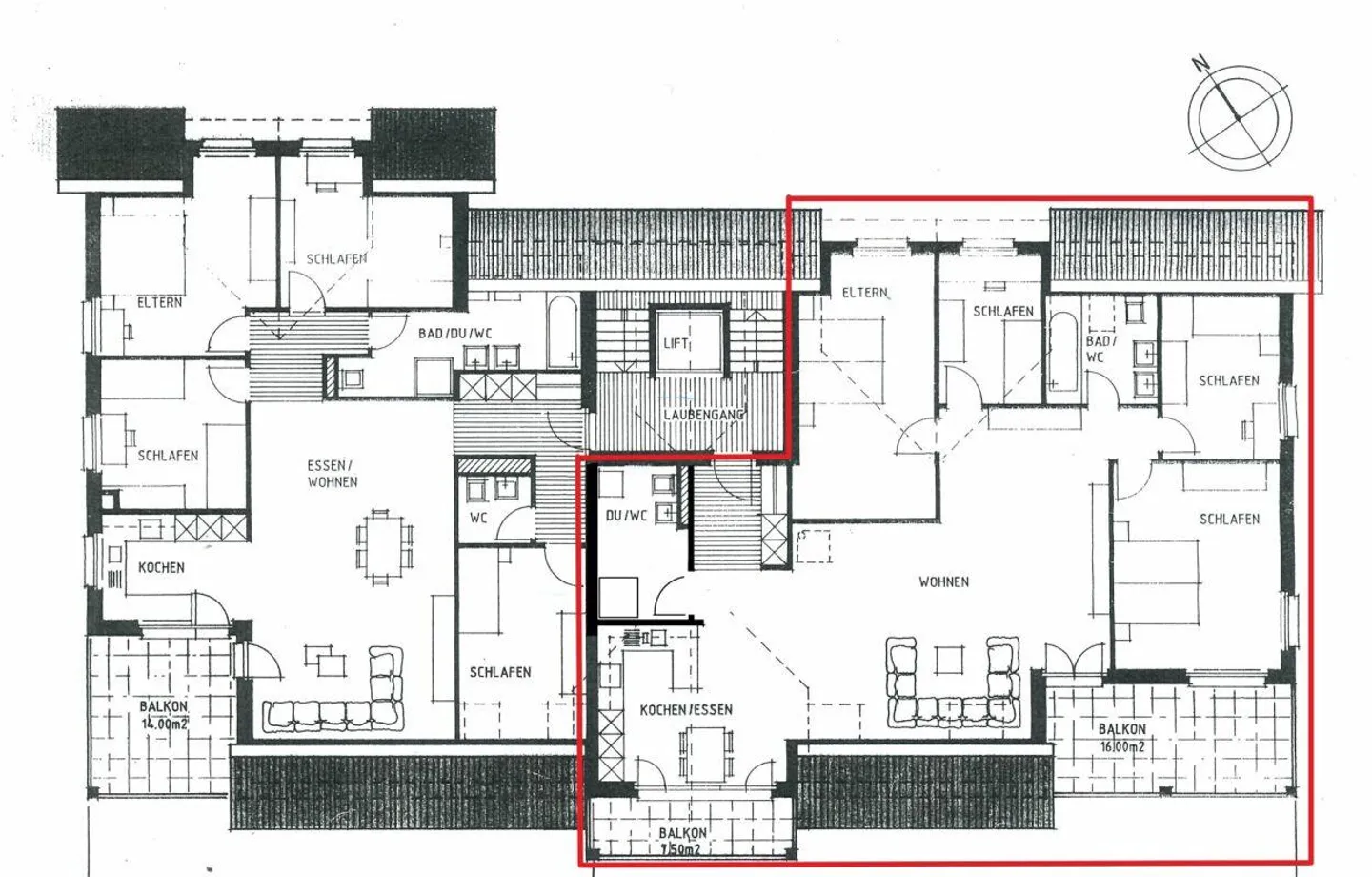
For sale at Haushaldenstrasse 2a in 8374 Dussnang; large 5½ room attic apartment, in a quiet, sunny location / only 2 minutes walk to public transport!
Fischingen
For sale at Haushaldenstrasse 2a in 8374 Dussnang large 5 1/2 room attic apartment with approx. 200 m2 of living space.
Schools and public transport in the immediate vicinity.
Partially renovated, new oak parquet floors in the rooms. Bathroom with shower/WC and separate shower/WC. 2 sunny balconies.
Cellar, attic. Elevator and 1 underground parking space 6x4 meters.
Price: Fr. 1'020'000.-
Phone and viewing from MON to SAT, from 7.00 to 20.00.
, we are happy to help!
Viewing appointments or a ...
Property details
- Available from
- By agreement
- Rooms
- 5.5
- Living surface
- 200 m²



