Apartment for sale - Luzernstrasse 26, 4553 Subingen
Why you'll love this property
Spacious 22.5 m² balcony
Bright open living area
Efficient heating system
Arrange a visit
Book a visit with Markus today!
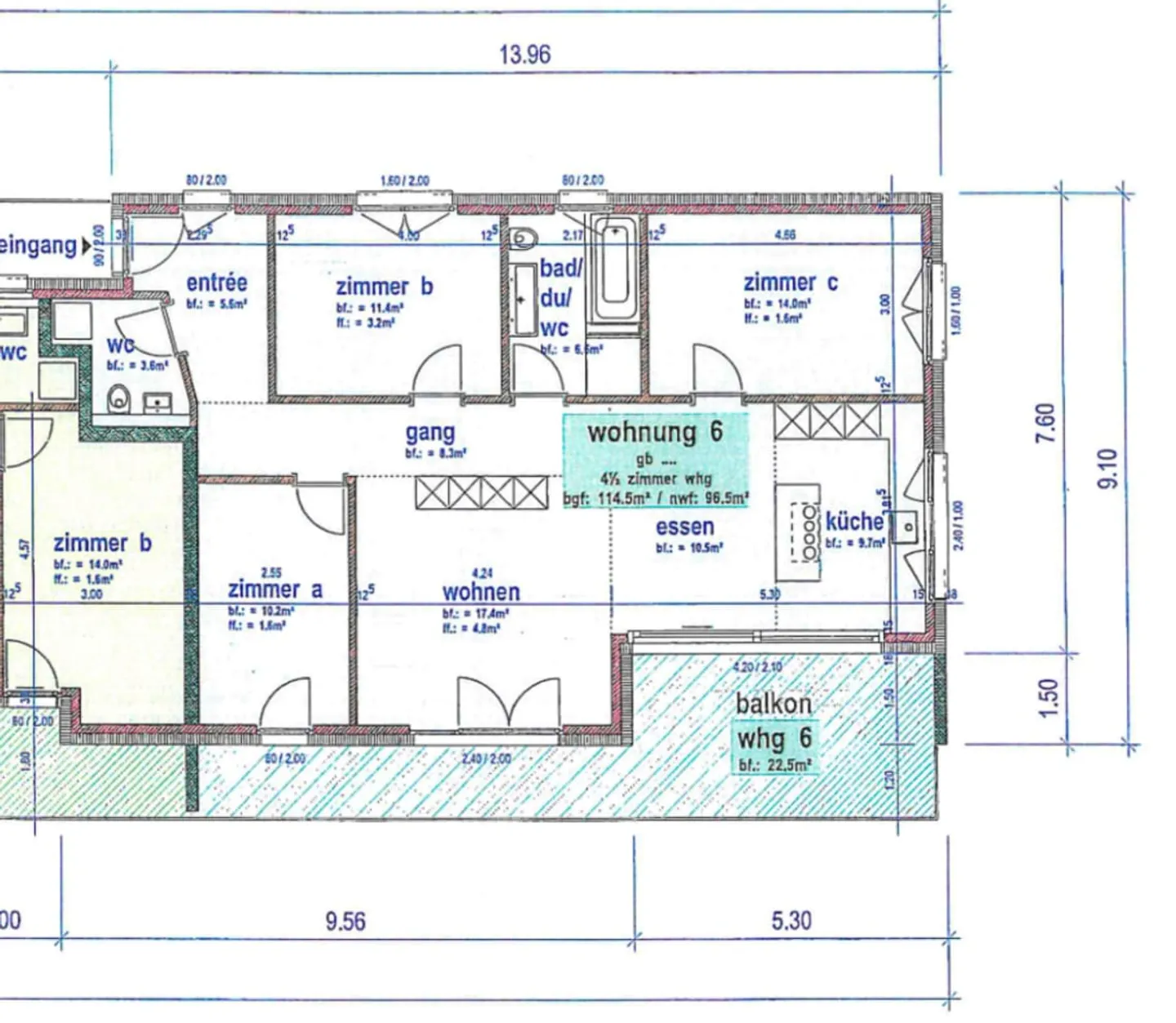
New construction 2027: This bright 4.5-room apartment on the 1st floor (East) at Luzernstrasse 26 in Subingen combines modern architecture, tranquility, and mountain views - ideal for everyday life, family, and home office.
Apartment & Floor Plan
* Approx. 95 m² net living area, BGF approx. 114.5 m²
* Spacious balcony approx. 22.5 m² with mountain view
* Bright living/dining area with direct balcony access
* Open kitchen with plenty of storage space
* 3 rooms for sleeping, children, or office
* Bat...
Property details
- Available from
- By agreement
- Rooms
- 4.5
- Outdoor parking spaces
- 1
- Construction year
- 2027
- Living surface
- 95 m²
- Floor
- 1st
- Building floors
- 2



