Apartment for sale - Rue De La Roulema 25, 1632 Riaz
Why you'll love this property
Spacious private garden
Large terrace for relaxation
Modern kitchen with dining area
Arrange a visit
Book a visit today!
For sale, ppe apartment, 1632 riaz, ref 1632.01
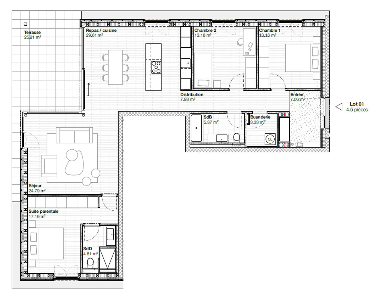
For sale in Riaz: Magnificent 4.5-room apartment on the ground floor
The apartment consists of:
Entrance/Hallway
Laundry room
Bathroom (5.37 m2) Kitchen/Dining room (29.61 m2)
Living room (24.79 m2)
2 Bedrooms (13.18 m2 / 13.16 m2)
1 Master bedroom with bathroom (17.19 m2 / 4.61 m2)
Terrace (25.91 m2)
Private garden (157.27 m2)
Cellar (7.04 m2)
An underground parking space completes this project. The price is CHF 35,000.- per unit
Delivery: around April 2027
BUDGETS
Sanitary appliances
Budget: C...
Property details
- Available from
- By agreement
- Rooms
- 4.5
- Construction year
- 2025
- Living surface
- 130 m²
- Usable surface
- 146 m²
- Floor
- Ground




