Duplex for sale - Bündtenstrasse 25, 5615 Fahrwangen
Why you'll love this property
Sunny garden terrace
Stylish open kitchen
Quiet family-friendly area
Arrange a visit
Book a visit with Ian today!
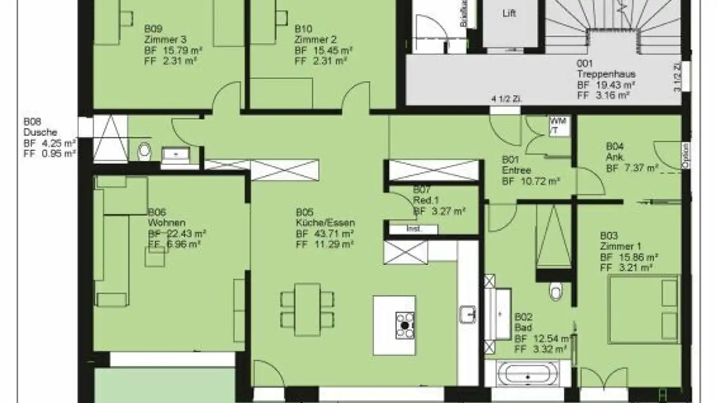
Modern 5.5-room maisonette with garden - Living on two levels in Fahrwangen
This modern and light-flooded 5.5-room maisonette apartment offers a generous home for families or couples with high demands on 164 m2 of living space. The open living and dining area with modern kitchen and cooking island leads directly to the sunny garden terrace (66m2) - ideal for relaxing hours outdoors.
Two stylish bathrooms, parquet floors, large window areas, and a balcony on the upper floor ensure high living comfort. The quiet, family-friendly location combines nature and good accessibil...
Property details
- Available from
- 12.08.2025
- Rooms
- 5.5
- Construction year
- 2018
- Living surface
- 160 m²
- Usable surface
- 160 m²
- Floor
- Ground
- Building floors
- 3


