Penthouse for sale - Brunnenweg 2, 8154 Oberglatt ZH
Why you'll love this property
High-quality modern finishes
Fitness room with glass wall
Central location with park
Arrange a visit
Book a visit with Feierabend today!
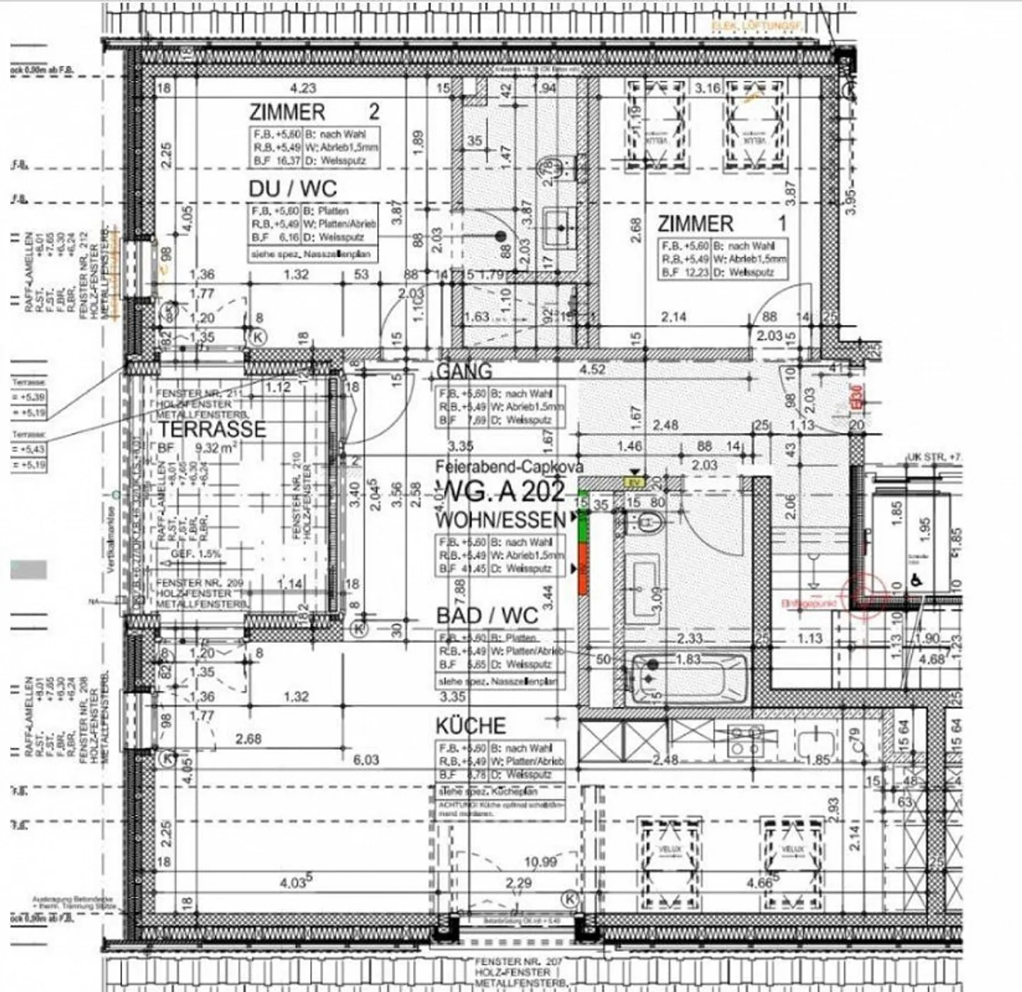
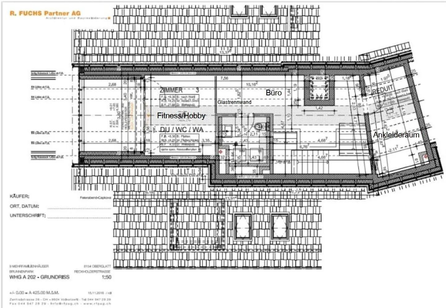
Modern 4.5-room maisonette penthouse apartment 135m2
Living like in your own house
Description
The 2-story penthouse apartment is characterized by high-quality and modern furnishings.
While the 1st attic floor invites you to feel comfortable with bright rooms and an open layout, the 2nd attic floor impresses with clever room layout:
- Separate WC with connections for washing machine/dryer
- Dressing room with custom furniture, which can also be used as a guest room
- Fitness/hobby room with glass partition
- Office
A large cellar with access to the underg...
Property details
- Available from
- By agreement
- Rooms
- 4.5
- Construction year
- 2020
- Living surface
- 135 m²
- Floor
- 9th


