Apartment for sale - 1941 Cries (Vollèges)
Why you'll love this property
Private garden space
Open kitchen design
Customizable finishes
Arrange a visit
Book a visit with Nicolas today!
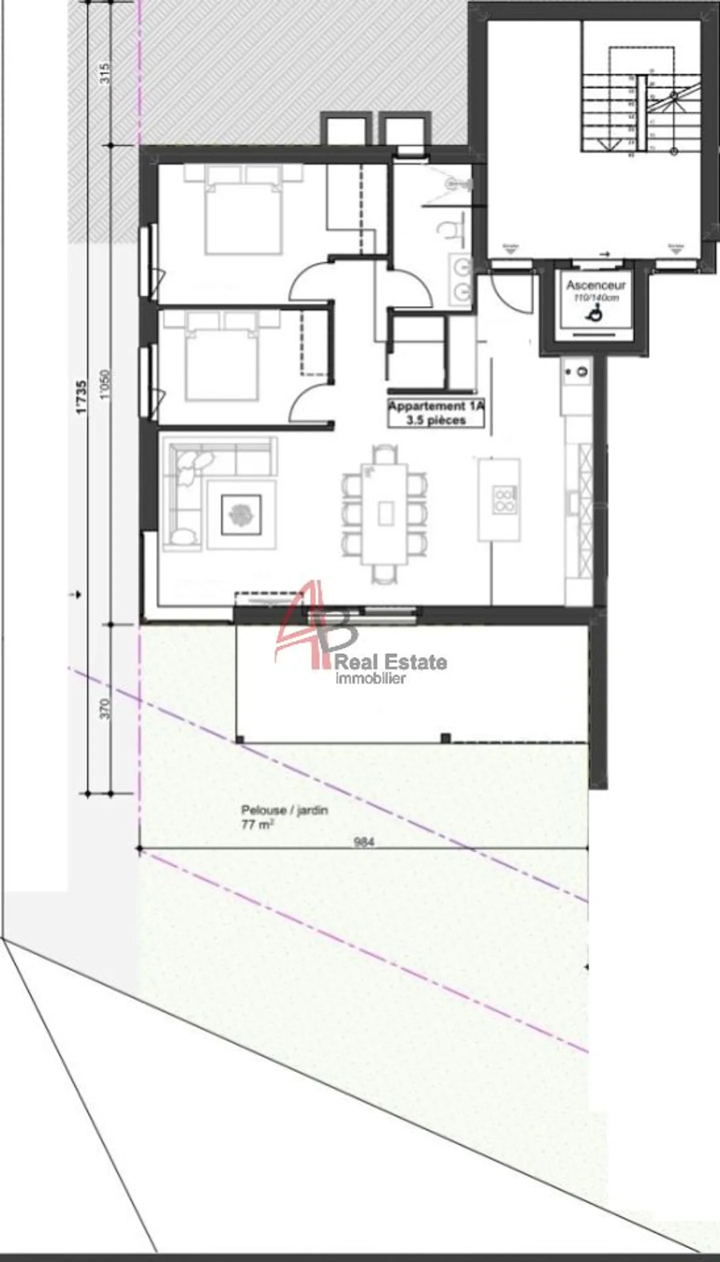
3.5-room apartment
VAL DE BAGNES (Cries) New 3.5-room apartment with garden
New 3.5-room apartment with garden
In the VIVALDI residence in Cries (Val de Bagnes), this 3.5-room apartment offers
a sales area of 103.40 m² as well as a private garden of 76 m².
Distribution:
Living room
with open kitchen
2 bedrooms
Bathroom
Terrace
approx. 20 m²
Particularity:
Project in progress, choice of finishes at the buyer's discretion:
Kitchen
Bathroom
Floor coverings
Advantages:
Clear view
Quiet environment
New property
CHF 798,000.-
With 2 parki...
Property details
- Available from
- By agreement
- Rooms
- 3.5
- Living surface
- 103 m²




