Apartment for sale - 1773 Léchelles
Why you'll love this property
High-quality finishes
Spacious 14 m² terrace
Underground parking available
Arrange a visit
Book a visit today!
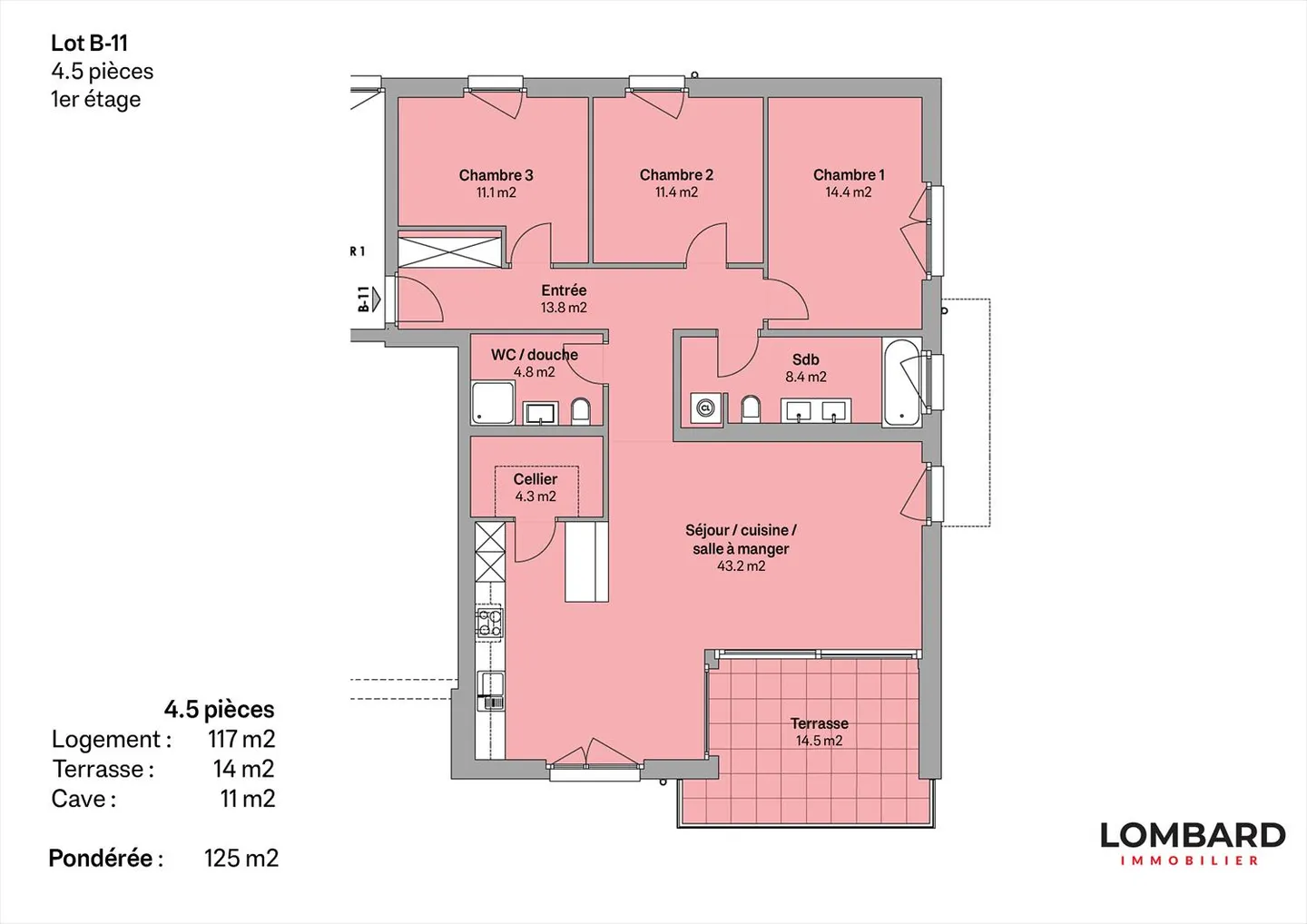
New 4.5-room apartment on the 1st floor
For sale in Léchelles: beautiful new 4.5-room apartment on the 1st floor (Building B) in a small residential building with 9 units and an elevator.
Discover the new promotion "Résidences des Hirondelles", located in Léchelles. Construction has begun and the completion of the apartments is planned for the end of 2025.
* Large 4.5-room apartment with 125 m2 of living space
* Fully equipped kitchen (Miele)
* 2 bathrooms
* Built-in wardrobes at the entrance of the apartment
* High-quality materials and fi...
Property details
- Available from
- By agreement
- Rooms
- 4.5
- Construction year
- 2025
- Living surface
- 125 m²




