1 / 6

Apartment for sale - 1773 Léchelles

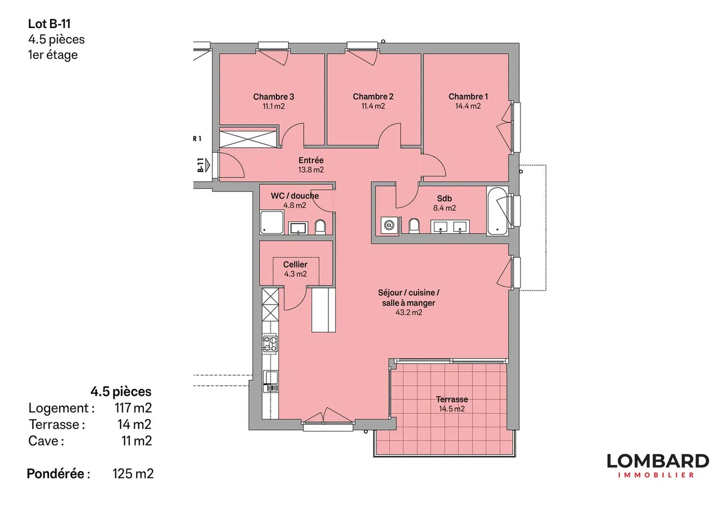
4.5 rooms • 125 m²
CHF 725’000
CHF 5’800 m²

Why you'll love this property

High-quality finishes

14 m² terrace

Quiet village location

Arrange a visit

Book a visit with Maxime today!

Maxime Maffre
Lombard Immobilier SA
This description has been automatically translated from German.

New 4.5-room apartment on the 1st floor

For sale in Léchelles: magnificent new 4.5-room apartment on the 1st floor (Building B) in a small residential building with 9 units and an elevator.

Discover the new advertising campaign << Résidences des Hirondelles >> in Léchelles. Construction has begun and the completion of the apartments is planned for the end of 2025.

* Large 4.5-room apartment with 125 m2 of living space

* Fully equipped kitchen (Miele)

* 2 bathrooms

* Built-in wardrobes at the entrance of the apartment

* High-qual...

Property details

Available from
By agreement
Rooms
4.5
Construction year
2025
Living surface
125

Features

Garage
Balcony
Parking
Elevator

Agency

Lombard  Immobilier SA
Lombard Immobilier SA
Address:Champ de Lune 11, 1470, Estavayer
(23 reviews)
Maxime Maffre
Ref: 1jrql.d218g
Online since
30/01/2026
6 hours ago

Location

1773 Léchelles