Apartment for sale - 1773 Léchelles
Why you'll love this property
Spacious 25 m² terrace
Quality Miele kitchen
75 m² private garden
Arrange a visit
Book a visit today!
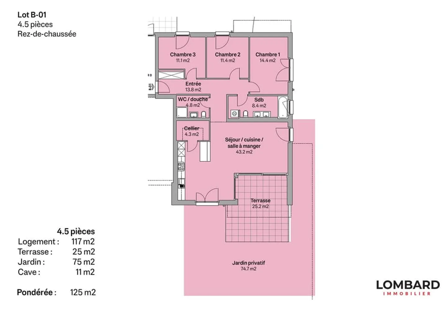
New 4.5-room apartment with garden
For sale in Léchelles: magnificent new 4.5-room apartment on the ground floor (Building B) located in a small building of 9 lots with elevator.
Discover the new promotion << Résidences des Hirondelles >> located in Léchelles. This apartment is new and available immediately.
- Large 4.5-room apartment of 126 m2 of surface
- Fully equipped kitchen (Miele)
- 2 bathrooms
- Storage cabinets at the entrance of the apartment
- Quality materials and equipment (motorized blinds, triple glazin...
Property details
- Available from
- 01.01.1970
- Rooms
- 4.5
- Construction year
- 2025
- Living surface
- 126 m²
- Usable surface
- 126 m²




